Didáctica del Diseño Arquitectónico y Estructural:

Innovación y Flexibilidad en la Vivienda para una Sociedad en

Continua Transformación


Teaching Architectural and Structural Design:

Innovation and Flexibility in Housing for a Society in Continuous

Transformation




Ma. Guadalupe Noemi Uehara Guerrero

Universidad Veracruzana, México


guehara@uv.mx

0000-0003-3968-7797




Juan Andrés Sánchez García

Universidad Veracruzana, México


juansanchez@uv.mx

0000-0003-2217-2711




Eunice del Carmen García García

Universidad Veracruzana, México


eungarcia@uv.mx

0000-0001-8224-0259




Recibido: 11/08/2025

Aceptado: 03/12/2025















Resumen


Este artículo de investigación aborda la problemática de las tipologías de vivienda tradicionales, centrándose en que estas no se ajustan a las transformaciones sociales y familiares de la vida moderna. Ante la creciente diversidad en las estructuras familiares, surge la necesidad de replantear y cuestionar la enseñanza del diseño arquitectónico y estructural para formar profesionales capaces de innovar en la creación de viviendas flexibles y adaptables; con ello, se busca aportar al desarrollo de espacios habitables contemporáneos, con diseños versátiles en sus tipologías, que respondan eficazmente a las dinámicas sociales actuales. El objetivo es examinar la manera en que la didáctica del diseño arquitectónico puede integrar innovación y flexibilidad en el proceso habitacional, al preparar a los estudiantes para enfrentar estos desafíos ante la diversidad de familias. La metodología incluye una revisión crítica de las tipologías actuales y la evaluación de propuestas arquitectónicas centradas en la flexibilidad espacial. Además, se exploran enfoques pedagógicos que fomentan la creatividad y el pensamiento crítico en los estudiantes, al capacitarlos para diseñar viviendas que evolucionen con las necesidades de los usuarios. En los resultados, se presenta un proyecto arquitectónico de un estudiante de arquitectura elaborado bajo la modalidad de tesis, que ilustra cómo la flexibilidad y adaptabilidad pueden materializarse en soluciones habitacionales concretas. Las conclusiones destacan la importancia de integrar la flexibilidad espacial mediante una correcta aplicación del sistema estructural, lo que permite una diversificación de los espacios en viviendas multifamiliares, al adaptarse a los cambios y necesidades de los ocupantes.


Palabras clave: Diseño arquitectónico, flexibilidad, sistema estructural, tipologías habitacionales.






Abstract


This research paper addresses the problems of traditional housing typologies and focuses on their inability to adapt to the social and familial transformations of modern life. Given the growing diversity of family structures, there is a need to rethink and question the teaching of architectural and structural design to train professionals capable of innovating in the creation of flexible and adaptable housing. This research seeks to trigger an impact on the development of contemporary living spaces, through versatile designs that respond optimally to current social dynamics. The objective is to examine how architectural design teaching can integrate innovation and flexibility into the housing process, preparing students to address these challenges in the face of diverse families. The methodology includes a critical review of current typologies and the evaluation of architectural proposals focused on spatial flexibility. Additionally, pedagogical approaches are explored to foster creativity and critical thinking in students, enabling them to design homes that evolve with the needs of their users. The results include an architectural project developed by an architecture student as a thesis, which illustrates how flexibility and adaptability can be realized in concrete housing solutions. The conclusions highlight the importance of integrating spatial flexibility through the proper application of the structural system, which allows for a diversified range of spaces in multi-family homes, adapting to the changing needs of the occupants.


Keywords: Architectural design, flexibility, structural system, housing typologies.




1. Introducción


El mercado inmobiliario, impulsado por los procesos de privatización en la última década del siglo XX, ha promovido un desarrollo de viviendas expansivo, horizontal y de bajo costo, por lo que ha ejercido un control absoluto sobre el crecimiento de la ciudad, la cantidad y calidad de las viviendas, así como los modos de vida. Este modelo asignó espacios habitacionales basados en el número de ocupantes y dejó de lado las particularidades de las estructuras familiares (Deilmann et al., 1980). En contraposición, los seres humanos son singulares, con formas de convivencia y necesidades habitacionales diversas, que van desde individuos que prefieren la vida solitaria hasta familias monoparentales, parejas sin hijos o personas que deciden habitar juntas sin lazos consanguíneos. La sociedad del siglo XXI demanda viviendas dinámicas, versátiles y confortables, capaces de adaptarse a esta diversidad (Fisch et al., 2011).

Históricamente, durante la industrialización a finales del siglo XIX y principios del XX, las soluciones habitacionales se orientaron hacia la estandarización y producción masiva, con bloques de viviendas colectivas que no consideraban la diversidad familiar. Estas viviendas eran concebidas para familias tradicionales, lo que reflejaba la estructura predominante de la época. Con el movimiento moderno, surgieron intentos de solventar la demanda habitacional mediante bloques lineales y estrategias mercantiles, como la incorporación de la planta tipo, pero estos modelos ignoraron las particularidades individuales y sociales (Díaz y Milenia, 2007).

A partir de 1980, en la etapa del posmodernismo, se buscaron alternativas para sustituir los bloques homogéneos por edificaciones que promovieran identidad y pertenencia, a través de la forma y función. Sistemas modulares prefabricados permitieron diseñar viviendas más abiertas y flexibles, con materiales que reducían costos de producción y ofrecían confort. Sin embargo, estas innovaciones se limitaron al mercado de lujo, por lo que dejaban a las viviendas sociales atrapadas en modelos estandarizados y rígidos (French, 2008). En la actualidad, las viviendas para la clase trabajadora siguen siendo producidas en serie, clasificadas en tipologías que no satisfacen las necesidades contemporáneas, lo que genera insatisfacción respecto a la habitabilidad interna.

“Hoy la familia está en crisis, pues los tres ejes centrales: sexualidad, procreación y convivencia, han ido variando significativamente como producto de la significación que para los miembros adquieren las relaciones familiares en las actuales condiciones” (Baeza, 2005, p. 36). Esta situación da lugar a un amplio espectro de estructuras familiares, como familias tradicionales, monoparentales, parejas sin hijos, familias reconstruidas, hogares de adultos mayores con familiares adoptados, o grupos sin lazos consanguíneos. La configuración actual de los lazos familiares no permite una única definición, pero en México se puede entender como un grupo de personas que comparten lazos de convivencia y habitan un mismo espacio (Capulin et al., 2016). Este panorama evidencia la necesidad de que el diseño de viviendas responda a las dinámicas sociales contemporáneas, con soluciones que contemplen la diversidad y flexibilidad.

La presente investigación se enfoca en cómo las pedagogías del diseño arquitectónico pueden formar a los estudiantes para proyectar viviendas que se adapten a las transformaciones sociales y familiares. La hipótesis central sostiene que la flexibilidad en el diseño habitacional, soportada por sistemas estructurales innovadores, es clave para enfrentar las necesidades de una sociedad en constante cambio. Se justifica este estudio por la urgencia de promover una enseñanza arquitectónica pertinente que forme profesionales capaces de diseñar viviendas contemporáneas, versátiles y adaptables, lo que contribuye a mejorar la calidad de vida de los usuarios.



Crítica a las tipologías de vivienda rígidas y estandarizadas


A finales del siglo XIX, la Revolución Industrial no solo transformó las formas de producción, sino también las dinámicas urbanas, al generar un crecimiento demográfico significativo en las ciudades. Este fenómeno trajo consigo una gran demanda habitacional para los trabajadores de la industria, lo que dio lugar a la idea de la producción estándar de viviendas. Este modelo, caracterizado por su rapidez y economía, se impulsó con la incorporación de nuevos materiales que reducían los costos de producción (Diaz y Milenia, 2007). Más adelante, la Bauhaus, bajo la dirección de Walter Gropius, consolidó este enfoque, al establecer normas que mejoraran la iluminación y ventilación de los espacios habitacionales; se incorporó la antropometría como elemento clave en el diseño. Estos avances marcaron una mejora significativa en la calidad de vida de las familias, especialmente al reemplazar las condiciones insalubres de las viviendas tradicionales (Mansur, 2020).

En el marco de la modernidad arquitectónica, Le Corbusier señaló, en 1928, que los sistemas constructivos tradicionales eran insuficientes para satisfacer las necesidades habitacionales de una sociedad en transformación; además, propuso un enfoque centrado en la funcionalidad, al eliminar adornos superfluos y priorizar la eficiencia. Este periodo marcó un cambio de paradigma, con la racionalización y modulación de elementos constructivos para la producción masiva de viviendas, por lo que Le Corbusier y otros arquitectos de su tiempo creían en la democratización de la vivienda, a través de los avances tecnológicos y la industrialización (Cassinello, 2008).

Sin embargo, a pesar de los ideales de modernidad y democratización, la industria de la vivienda no logró equilibrar los avances tecnológicos con el bienestar social. El enfoque económico prevaleció, lo que resultó en una estandarización masiva que ignoró la diversidad de formas de habitar. Este modelo rígido ha perpetuado problemas como la pérdida de identidad de los habitantes y la falta de adaptabilidad a las necesidades contemporáneas. La vivienda, como núcleo de la existencia humana, debe ir más allá de su función como producto económico, para convertirse en un espacio que responda a las necesidades y aspiraciones de sus ocupantes (Sarmiento, 2017).

El principal error en este período de arquitectura fue confundir la industrialización con la tipificación, al trasladar la repetitividad de los elementos constructivos a las configuraciones espaciales; esto resultó en tipologías homogéneas y rígidas. Este enfoque no responde a las dinámicas actuales de las familias, que demandan mayor flexibilidad y personalización, por lo que, para lograr un equilibrio, es fundamental combinar los avances tecnológicos con un enfoque centrado en el bienestar social, que priorice el confort, la funcionalidad y la adaptabilidad en el diseño habitacional.

Se reconoce que la vivienda es un patrimonio que trasciende su valor económico; es un espacio vital con un significado profundo para sus ocupantes. Sin embargo, los desarrolladores inmobiliarios tienden a priorizar la maximización de ganancias por encima de la calidad de vida de los habitantes, por lo que alcanzar un equilibrio entre rentabilidad y habitabilidad requiere un compromiso que permita diseñar viviendas sostenibles y significativas para las personas.

Un ejemplo destacado de resistencia a la estandarización es el trabajo de Jean Nouvel, quien, en la década de 1980, diseñó el edificio Nemausus en Francia, que incorporó plantas arquitectónicas dinámicas y versátiles. Este enfoque ofreció, a las familias, la posibilidad de personalizar sus espacios habitacionales, al adaptarlos a sus necesidades y formas de habitar. Este tipo de propuestas demuestran que es posible superar las limitaciones de la producción en serie y ofrecer soluciones arquitectónicas inclusivas y sostenibles (French, 2008).

La estandarización de las tipologías de vivienda ha sido una respuesta funcional a la demanda masiva, pero ha fallado en atender la diversidad y complejidad de las necesidades habitacionales contemporáneas. Este proceso, al priorizar la economía sobre la calidad, perpetúa modelos que alienan a los ocupantes y reducen la riqueza espacial de los hogares. La arquitectura debe trascender la rigidez de estas tipologías y apostar por soluciones flexibles, dinámicas y sostenibles que equilibren los avances tecnológicos con la dignidad y el confort de las personas. Proyectos como los de Jean Nouvel demuestran que es posible reimaginar la vivienda como un espacio adaptable que responda a las demandas sociales, económicas y culturales de nuestra época, lo que abre camino hacia un modelo arquitectónico más humanizado.



Transformaciones en la estructura familiar: diversificación contemporánea de lazos en los hogares


Desde diversas disciplinas y áreas de conocimiento, se ha demostrado que la institución familiar ha experimentado transformaciones significativas en su estructura y en los lazos o vínculos que unen a sus miembros. Estos cambios han diversificado las formas de habitar, lo que ha dejado obsoletas a las “tipologías” de vivienda diseñadas para una sociedad de masas que generalizaba la vida familiar bajo el modelo tradicional: el padre trabajador, la madre a cargo de las labores del hogar y los hijos que asistían a la escuela. Aunque la familia ha sido considerada, históricamente, como la célula básica de la sociedad, los cambios estructurales y funcionales que ha experimentado en las últimas décadas no se han reflejado con la misma celeridad en el diseño habitacional.

El enfoque de este artículo define a los ocupantes de una casa como una o más personas que residen bajo un mismo techo. Estas personas pueden incluir individuos solteros que viven solos, personas que comparten vivienda con parientes, amigos o compañeros de trabajo, o parejas con o sin hijos. Además, abarcan estructuras familiares diversas, como familias nucleares, monoparentales, mixtas o poligénicas, producto del restablecimiento de nuevos núcleos familiares. También incluyen otras formas de vínculo, afecto o parentesco que desafían las categorizaciones tradicionales (Vásquez, 2005).

La evolución contemporánea de las estructuras familiares y la diversificación de los lazos de unión han generado demandas habitacionales que repercuten tanto en la dimensión físico-espacial de la vivienda como en la psicosocial de sus ocupantes. Sin embargo, estas necesidades no han sido plenamente comprendidas ni atendidas por desarrolladores, arrendadores y promotores inmobiliarios, por lo que, en el mercado actual, las soluciones habitacionales suelen carecer de la flexibilidad técnica necesaria para responder a las exigencias de habitabilidad de la sociedad del siglo XXI.

La sociedad ha cambiado desde entonces y, si bien la realidad se ha transformado por completo, la morfología de las unidades habitacionales y los espacios comunes se mantiene estática, como si hubieran quedado atrapados en aquel momento. Lo contrario sucede con la vida de las personas, que se ha modernizado completamente: dichas unidades deberían diseñarse de acuerdo al usuario y las tendencias actuales. La realidad es que muchas de las viviendas no se continúan utilizando adecuadamente para lo que un día se pensó, por lo que deberían actualizarse, para poder seguir haciéndolo. Por ende, cabe la necesidad de proveer un espacio residencial complejo (Sánchez, 2022).

Las tipologías habitacionales tradicionales no ofrecen la variabilidad necesaria para adaptarse a los cambios en las dinámicas de sus ocupantes, no contemplan la posibilidad de aumentar o disminuir la superficie habitable, ni permiten una mutabilidad interna en planta o en altura que facilite la redistribución del espacio, en función de las necesidades a corto, mediano o largo plazo (Deilmann et al., 1980). Esta falta de adaptabilidad limita la capacidad de las viviendas para responder a la diversidad contemporánea de formas de habitar.

La finalidad de una estructura habitacional más flexible es el ofrecer, dentro de un sistema constructivo adecuado, una distribución que permita adaptarse a exigencias de habitabilidad múltiples, diversas y cambiantes. Este objetivo implica reconocer que la individualidad de los ocupantes demanda características espaciales específicas. Norberg-Schulz (1975) destaca que “el espacio personal no debe confundirse con la territorialidad de las familias; la vivienda constituye un límite o borde experimentado como ‘interior’, generando seguridad y confort espacial, en contraste con el exterior que lo rodea” (p. 23).

Asimismo, resulta indispensable replantear no solo los diseños arquitectónicos de las viviendas y los conjuntos habitacionales, sino también los mecanismos de financiamiento para su adquisición. Romero y Rojas (2018) enfatizan que las políticas habitacionales tradicionales han estado enfocadas en la familia nuclear, por lo que han ignorado la diversidad contemporánea. El Diario Oficial de la Federación (2014) subraya que “es indispensable pensar en nuevos esquemas tanto en diseño como en financiamiento” (p. 7), para abordar las necesidades de una sociedad que exige viviendas flexibles y adaptables.

En este contexto, el reto no solo radica en modificar las tipologías arquitectónicas, sino también en transformar el paradigma de cómo se concibe la habitabilidad, lo que aseguraría que las viviendas sean capaces de evolucionar junto con las dinámicas sociales desde la pedagogía del diseño arquitectónico.



Flexibilidad en la vivienda multifamiliar: Espacios adaptables y modificables


La flexibilidad y la adaptabilidad son cualidades esenciales que determinan la calidad del diseño en un conjunto de viviendas, especialmente en relación con sus espacios interiores. La flexibilidad se entiende como la capacidad de un espacio para transformarse en otro, lo que implica la ausencia de restricciones estructurales que limiten esa transformación. Por su parte, la adaptabilidad se refiere a la capacidad de un espacio para responder a las preferencias y necesidades de sus usuarios, al ajustarse a diferentes condiciones a lo largo del tiempo. Es fundamental que los estudios sobre este tema no se limiten únicamente a un tipo específico de vivienda, sino que investiguen cómo estas cualidades influyen en la configuración de los espacios que componen un conjunto habitacional. La flexibilidad y adaptabilidad de los espacios son el resultado de decisiones proyectuales que, en muchos casos, implican un coste tecnológico que no siempre se transfiere al usuario final (Bermúdez, 2024).

La vivienda adaptable se define como aquella que puede modificar su estructura física de manera sencilla, por lo que responde a necesidades variables de espacio y tiempo. Este proceso se realiza mediante transformaciones planificadas y controladas, que generalmente implican cambios en los componentes internos de los espacios y elementos con menor durabilidad. Estas modificaciones se realizan manteniendo la estructura principal y las instalaciones del subsistema respectivo, lo que permite que las áreas internas de la vivienda evolucionen según los roles y requerimientos del usuario (Bendezu y Ventocilla, 2023).

En la actualidad, lograr viviendas verdaderamente flexibles y modificables es un objetivo prioritario en el sector de la construcción. Este enfoque permite adaptar los productos y procesos constructivos para satisfacer las necesidades sociales, económicas y medioambientales, lo que genera beneficios tanto para las empresas como para los usuarios. Las constructoras que adoptan este modelo ganan ventaja competitiva, mejoran su posición en el mercado y logran mayor preferencia por parte de los consumidores, lo que se traduce en una mayor rentabilidad (Ramos y Jiménez, 2023).

La adaptabilidad de los espacios y edificios tiene un impacto directo en la satisfacción y comodidad de sus ocupantes; por un lado, la adaptabilidad de las viviendas permite una gestión más eficiente del parque habitacional, ya que una misma vivienda puede ajustarse a diversas configuraciones familiares a lo largo del tiempo. Por ejemplo, se puede hablar de habitaciones que pueden dividirse o agruparse según las necesidades del momento, o zonas de estar y almacenaje que evolucionan con el paso de los años. Por otro lado, la adaptabilidad funcional de los edificios influye en que los usuarios perciban los espacios de manera dinámica en lugar de estática, lo que incrementa su sentido de pertenencia y bienestar.

Además, integrar opciones de personalización en el diseño de viviendas, tanto individuales como colectivas, favorece la percepción de los espacios como propios, y esto se logra mediante entornos con características ajustables, que permiten a los usuarios modificar los espacios de acuerdo con sus preferencias y necesidades. Este enfoque no solo promueve una mejor experiencia habitacional, sino que también fortalece el vínculo emocional entre los ocupantes y su entorno, lo que destaca la importancia de la flexibilidad y adaptabilidad en el diseño contemporáneo de viviendas multifamiliares.



Soluciones innovadoras centradas en la flexibilidad espacial habitacional


La flexibilidad espacial ha sido un concepto central en proyectos arquitectónicos que buscan adaptar la vivienda a las necesidades cambiantes de sus habitantes. Este enfoque ha sido abordado en obras icónicas como Habitat 67, de Moshe Safdie, y el Ausbauhaus Neukölln, de Praeger Richter Architekten. Ambos proyectos son ejemplos paradigmáticos de cómo el diseño modular y la adaptabilidad espacial pueden transformar la experiencia habitacional, al ofrecer soluciones que combinan innovación técnica con una sensibilidad humanista.



Habitat 67 Moshe Safdie


En 1967, Moshe Safdie presentó Habitat 67, en Montreal, Canadá. Este es un proyecto que redefinió el concepto de vivienda multifamiliar. Este complejo residencial, desarrollado en el marco de la Expo 67, es conocido por su diseño modular tridimensional que utiliza cubos prefabricados de hormigón armado. Cada módulo funciona como una célula estructural autónoma, lo que garantiza independencia y flexibilidad en el diseño de los espacios.

El diseño escalonado de Habitat 67 crea vacíos estratégicos que optimizan la iluminación natural y la ventilación cruzada, lo que proporciona, a cada vivienda, terrazas privadas y una conexión visual con el exterior. La disposición de los 357 módulos en quince tipologías distintas logra diversificar las configuraciones espaciales, lo que rompe con la monotonía característica de los proyectos de vivienda en serie. Esta disposición escalonada y modular, que elimina la necesidad de muros de carga internos, permite una mayor libertad para configurar los interiores, por lo que ofrece soluciones habitacionales dinámicas y sostenibles (Pascual, 2019).

El Hábitat 67 se compone por 357 módulos de igual tamaño de hormigón que en 15 tipologías conforman 158 viviendas que van desde los 57 a los 160 m2. Estos se apoyan unos con otros y se complementan con una estructura de igual materialidad que contiene las circulaciones tanto verticales, horizontales y los espacios comunes. Su construcción se hizo en el marco de la exposición del año 67 en Montreal, Canadá y marcó un precedente dentro de la construcción de viviendas célula. (Pascual, 2019, p. 2)


La Figura 1 corresponde a un corte arquitectónico en el que se puede observar que la estructura está compuesta por unidades cúbicas prefabricadas unas sobre otras que se entrelazan para crear una composición arquitectónica. Este diseño modular permite la interconexión de espacios habitacionales con gran variedad en sus configuraciones. La disposición de los módulos crea vacíos estratégicos que favorecen la iluminación natural y la ventilación cruzada en las viviendas. Cada módulo funciona como una unidad estructural independiente que soporta su propio peso y, en algunos casos, parte del peso de los módulos superiores. Este enfoque minimiza la dependencia de columnas o muros tradicionales, lo que libera los interiores para configuraciones flexibles.




Figura 1. Corte arquitectónico de Habitat 67
Nota. Extraído de Habitat 64 (Pascual, 2019).



La Figura 1 sugiere la integración de elementos verticales como escaleras y pasillos que conectan los módulos. La disposición espacial de Habitat 67 sigue siendo relevante y adecuada para las necesidades habitacionales contemporáneas. Aunque han transcurrido más de cinco décadas desde su inauguración, este proyecto continúa destacándose por su diseño innovador y vanguardista, que se diferencia significativamente de las construcciones típicas de viviendas colectivas.

En resumen, el diseño estructural de esta obra arquitectónica es una síntesis de prefabricación industrial y arquitectura humanista. Moshe Safdie logró un equilibrio entre innovación técnica y habitabilidad, por lo que demostró que es posible combinar densidad urbana con confort y adaptabilidad. Así, este proyecto sigue siendo un referente en el diseño estructural y arquitectónico, por lo que inspira nuevas formas de abordar la vivienda colectiva en contextos contemporáneos.



Ausbauhaus Neukölln


El proyecto Ausbauhaus Neukölln, que en español significa “Casa de ampliación Neukölln”, representa un enfoque innovador en el diseño residencial contemporáneo. Según los autores Praeger Richter Architekten (2014), los apartamentos se diseñaron para ser vendidos en diferentes etapas del proceso de construcción, lo que permite a los propietarios configurar sus espacios interiores según sus necesidades y presupuesto. Estas viviendas son casas de conversión, construidas a partir de unidades de libre extensión que pueden ampliarse de diversas maneras. Este complejo habitacional, compuesto por 24 unidades diseñadas para vivir y trabajar, se encuentra ubicado estratégicamente junto a la Ringbahn de Berlín.

El edificio destaca por su sistema estructural modular y su innovadora fachada perforada (Figura 2); a esto, se le añade una fachada que está compuesta por paneles deslizables que los residentes pueden ajustar para controlar la privacidad, la entrada de luz natural y la ventilación, por lo que se adaptan a sus preferencias personales. La estructura del edificio utiliza un sistema de marcos de acero y concreto armado, lo que garantiza estabilidad y flexibilidad. Esta configuración modular elimina la necesidad de muros de carga interiores, lo que permite a los habitantes personalizar sus viviendas y reorganizar los espacios según sus necesidades. Este sistema estructural, además, facilita futuras modificaciones o ampliaciones, sin afectar la integridad general del edificio (Praeger Richter, 2014).




Figura 2. Proyecto residencial comunitario Ausbauhaus Neukölln

Nota. Preager Ritcher (2014).



La flexibilidad de la planta se maximiza al liberar la estructura portante de restricciones interiores, lo que ofrece múltiples configuraciones espaciales. El concepto de Ausbauhaus introduce diseños interiores individualizados dentro de apartamentos sin columnas, lo que asegura que las variaciones en los espacios interiores no interfieran con la estructura general. Los apartamentos se entregan en diferentes niveles de acabado, como lofts estándar o apartamentos estándar, que se adaptan tanto a las capacidades económicas como a los deseos temporales de los propietarios (Praeger Richter, 2014).

El Ausbauhaus Neukölln representa un paradigma de flexibilidad arquitectónica en el diseño habitacional contemporáneo, al ofrecer a los usuarios un control significativo sobre la configuración de sus viviendas, por lo que este proyecto redefine la relación entre estructura, espacio y habitabilidad. El enfoque de este proyecto no solo responde a las necesidades individuales de los propietarios, sino que también desafía las limitaciones de las tipologías tradicionales, al priorizar la adaptabilidad como principio central. Este modelo de diseño habitacional establece un precedente importante para la arquitectura residencial, que demuestra cómo la flexibilidad espacial puede integrarse en el diseño de viviendas multifamiliares para satisfacer las demandas de una sociedad en constante cambio.



Enfoques Pedagógicos propuestos para atender la demanda habitacional contemporánea


Los modelos pedagógicos se definen como marcos conceptuales que explican y orientan las prácticas de enseñanza, al estructurar los contenidos pedagógicos de manera que tengan sentido dentro del contexto social en el que se desarrollan (Zabala, 2019). Por otro lado, la pedagogía contemporánea se caracteriza por su capacidad de adaptarse, integrar diversos campos del conocimiento como la filosofía, la ciencia, el arte y la tecnología, y desechar aquello que no resulta funcional. La pedagogía bien aplicada fomenta la creación de nuevos saberes, consolida los ya existentes y forma estudiantes críticos, capaces de analizar e interpretar la realidad de manera activa y transformadora (Capistrán 2023).

En las escuelas de arquitectura, el taller de diseño arquitectónico es la estrategia pedagógica predominante, sustentada en un enfoque práctico y empírico. Sin embargo, como señalan Correal y Verdugo (2011), esta metodología carece de una base pedagógica formal, pues muchos docentes no cuentan con formación específica en pedagogía. Este vacío limita el alcance de la enseñanza en contextos complejos, como los que plantea la vivienda contemporánea, donde las dinámicas familiares, sociales y económicas demandan un replanteamiento de las tipologías y estructuras habitacionales tradicionales.

La transformación de las necesidades habitacionales requiere formar arquitectos capaces de diseñar viviendas multifamiliares que dinamicen y diversifiquen sus espacios internos mediante sistemas arquitectónicos y estructurales flexibles. Lograr este objetivo exige integrar enfoques pedagógicos que permitan a los estudiantes conectar teoría, práctica y creatividad en torno a problemáticas reales. Este apartado presenta dos estrategias complementarias: el Aprendizaje Activo y el Aprendizaje Basado en Problemas (ABP).

El Aprendizaje Activo involucra a los estudiantes directamente en actividades prácticas, reflexivas y colaborativas que fomentan el desarrollo de pensamiento crítico y habilidades técnicas. Restrepo (2018) menciona que este enfoque se basa en un pensamiento crítico que dialoga, contrasta y resuelve problemas. En el contexto arquitectónico, se traduce en la enseñanza del diseño modular y diagramas de relaciones espaciales donde los estudiantes exploran configuraciones estructurales flexibles y adaptativas, lo que hace que estas actividades no solo les permitan comprender los principios técnicos, sino también experimentar soluciones que responden a las demandas habitacionales contemporáneas.

Por otro lado, el Aprendizaje Basado en Problemas (ABP) parte de la identificación de problemas abiertos y reales como eje central del aprendizaje. Como destaca Restrepo (2005), el planteamiento del problema es fundamental en esta metodología y, traducido en arquitectura, este enfoque permite a los estudiantes trabajar en equipos interdisciplinarios para resolver problemas como la adaptación de viviendas a diferentes usuarios o el diseño de estructuras modulares escalables, sin olvidar que la investigación, el análisis crítico y la creatividad son esenciales para generar propuestas integrales que combinen flexibilidad, sostenibilidad y confort habitacional.

En conjunto, el Aprendizaje Activo y el Aprendizaje Basado en Problemas proporcionan un marco teórico-práctico que vincula el conocimiento académico con los problemas reales de la vivienda. Estas metodologías forman arquitectos capaces de diseñar soluciones habitacionales sostenibles, flexibles y humanizadas, que se adapten a las cambiantes necesidades de la sociedad contemporánea. La Tabla 1 detalla la aplicación de estos métodos en el contexto del diseño arquitectónico.




Tabla 1. Métodos de diseño aplicados al taller de proyectos



En un mundo donde las dinámicas sociales y económicas evolucionan rápidamente, la enseñanza de la arquitectura debe transformarse para preparar a los estudiantes a enfrentar desafíos complejos. Integrar enfoques pedagógicos como el Aprendizaje Activo y el ABP no solo promueve la comprensión técnica y la innovación, sino que también impulsa una formación humanista y crítica. Este marco educativo asegura que los futuros arquitectos no solo sean diseñadores competentes, sino también agentes de cambio, capaces de proyectar viviendas que respondan a las necesidades diversas y cambiantes de los habitantes en un contexto globalizado.



2. Metodología


El desarrollo de esta investigación se estructuró a partir de un enfoque cualitativo con miras a la propuesta de diseño en el taller de proyectos que combina revisión teórica, análisis crítico y análisis de ejemplos prácticos. Basados en los enfoques pedagógicos, se permite la construcción de un discurso de la enseñanza del diseño arquitectónico y estructural. Con la elección del Aprendizaje Activo y el Aprendizaje Basado en Problemas (ABP) se exploran los principios de flexibilidad y adaptabilidad en el diseño habitacional, donde se destaca que el primero se analizó como una herramienta para involucrar a los estudiantes en actividades prácticas que integren teoría y experimentación, y el segundo (ABP) se planteó para abordar problemas reales, lo que promovió la investigación interdisciplinaria y la resolución creativa de desafíos habitacionales.

Después del análisis de las características y limitaciones de las tipologías habitacionales estandarizadas que no responden a la sociedad en continua transformación, se presentaron como ejemplos de soluciones innovadoras a los casos de Habitat 67, de Moshe Safdie, y el proyecto Ausbauhaus Neukölln, de Praeger Richter, que destacan por su flexibilidad estructural y espacial como un esquema referencial para el abordaje en el taller de proyectos.

Finalmente, se concreta a esquematizar la propuesta del estudiante sobre la manera en que se aplican los principios de flexibilidad y adaptabilidad en proyectos habitacionales, cuya evaluación se basa en términos de su capacidad para responder a las dinámicas sociales contemporáneas y su implementación de sistemas estructurales. Esta metodología permite no sólo una comprensión integral del problema, sino también la generación de herramientas pedagógicas innovadoras para transformar la enseñanza del diseño arquitectónico en respuesta a las demandas habitacionales contemporáneas y detonar la habilidad crítica y creativa del estudiante, en miras de construir una propuesta diversa en la capacidad de hábitat de familias heterogéneas.

La metodología propuesta, entonces, se sustenta en un enfoque de aprendizaje proyectual basado en la investigación y el diseño, orientado a desarrollar la capacidad crítica y creativa del estudiante de arquitectura frente a los desafíos contemporáneos de la vivienda. En una primera etapa del estudiante, se plantea un diagnóstico sociohabitacional en el que se analizan los cambios en la estructura familiar contemporánea, lo que permite identificar variables como número de integrantes, edades, modos de convivencia y necesidades espaciales en la ciudad, lo cual va arrojando la dispersión en el modo de habitar.

En la segunda etapa, se desarrolla un proceso de conceptualización proyectual sustentado en principios de flexibilidad, modularidad y sostenibilidad. En este sentido, a través de ejercicios de análisis tipológico y morfológico, se busca que cada estudiante elabore un sistema estructural base, capaz de admitir variaciones espaciales, sin comprometer su estabilidad ni su eficiencia constructiva. En resumen, este sistema actúa como matriz generadora que posibilita múltiples configuraciones habitacionales, lo que permite que, a partir de una misma estructura, surjan diversas soluciones para familias heterogéneas.

La tercera etapa corresponde al desarrollo del complejo habitacional, donde se materializan las propuestas con el eje rector modular. Aquí es donde se promueve el trabajo colaborativo, la experimentación con modelos digitales y físicos, y la evaluación de criterios de habitabilidad, confort y adaptabilidad; esto se da con el objetivo de desarrollar un complejo integral que no sólo contenga diversidad tipológica, sino también espacios comunes que fomenten la convivencia intergeneracional, social y de habitabilidad.

En la cuarta etapa, se evalúa la optimización del diseño mediante simulaciones espaciales, al interactuar con estudios de iluminación, ventilación, y análisis de materiales. En esta etapa, el estudiante revisa la multiplicidad del desempeño funcional y ambiental de las distintas tipologías, para identificar cuáles se ajustan mejor a determinados perfiles familiares. A partir de esta evaluación, se refina la propuesta estructural modular, lo que logra una mayor coherencia entre el diseño arquitectónico y las demandas habitacionales contemporáneas.

Finalmente, la quinta fase se centra en la reflexión crítica y documentación del proceso, donde se sintetizan, sistematizan y se concluyen con los aprendizajes obtenidos y muestran la manera en que la diversidad familiar puede traducirse en una diversidad espacial coherente y sustentable, por lo que no solo se construye un conocimiento proyectual, sino que se desarrolla una postura ética y social del arquitecto en formación, capaz de concebir la vivienda como un espacio vivo, dinámico y plural.

Finalmente se presenta el resultado de un trabajo que se abordó bajo la metodología presentada y cuyo producto concluyó en una tesis titulada Complejo habitacional multifamiliar para atender la diversidad de vínculos familiares contemporáneos, elaborada por el estudiante de arquitectura Yahir Eduardo Lezama García. Este proyecto arquitectónico fue desarrollado en la Facultad de Arquitectura Región Xalapa de la Universidad Veracruzana, elaborado bajo una metodología pedagógica que combina los enfoques del Aprendizaje Activo y el Aprendizaje Basado en Problemas (ABP); ambos métodos permitieron al estudiante desarrollar habilidades críticas, creativas y técnicas necesarias para resolver problemas reales de vivienda contemporánea, lo que detonó la flexibilidad de la misma.



3. Resultados


Caso práctico en la didáctica arquitectónica


Bajo el enfoque Aprendizaje Activo, se realizaron revisiones teóricas para comprender las dinámicas familiares contemporáneas y la manera en que estas influyen en la configuración de espacios habitacionales. Bajo este enfoque, como método de resolución de un problema real, se presenta la manera de diseñar un complejo habitacional multifamiliar que responda a la diversidad de configuraciones familiares contemporáneas.

De esta manera, se definió como problemática central a la incapacidad de las tipologías tradicionales de vivienda para adaptarse a las necesidades de familias diversas como familias monoparentales, reconstituidas, multigeneracionales y hogares con vínculos no consanguíneos. A partir del problema planteado, se desarrollan propuestas que integran la flexibilidad estructural y funcional. Estas soluciones incluyen plantas arquitectónicas que permiten ampliaciones o divisiones internas, así como áreas comunes que fomentan la interacción social entre los habitantes.

A través de ejercicios prácticos, se realizó la exploración de configuraciones espaciales modulares que permitan flexibilidad y adaptabilidad en las viviendas, a través de maquetas físicas y simulaciones digitales que incorporan sistemas estructurales flexibles, tal como se muestra en la figura 3. Posteriormente, se contrasta con la concentración de viviendas de forma gráfica, adaptada al predio establecido, tal como se muestra en la figura 4.




Figura 3. Modelo tridimensional de la volumetría producto de aplicación del método adición del módulo

Nota. Yahir Eduardo Lezama García (2021).






Figura 4. Bocetos de la integración de viviendas en un solo edificio

Nota. Yahir Eduardo Lezama García (2021).



Al integrar estos enfoques pedagógicos al proceso de diseño arquitectónico en la academia de arquitectura, el estudiante logra desarrollar un Complejo Habitacional Multifamiliar que combina diseño arquitectónico innovador con soluciones prácticas y flexibles. El proyecto incluye 24 modelos de vivienda, con diferente organización espacial interna, modulada en múltiplos de 5 m2, con la finalidad de que, al adquirirlas, sean las familias las que decidan cuánto espacio necesitan para satisfacer sus necesidades. De igual forma, la superficie es delimitada por sistemas modulares prefabricados que buscan esquemas con plantas libres, espacios abiertos a doble altura y en conexión con una terraza o balcón, y con mobiliario que posibilite la multifuncionalidad de los espacios, tal como se muestra en la figura 5.


Figura 5. Diversificación en la organización espacial interna de las viviendas
Nota. Yahir Eduardo Lezama García (2021).



La estructura portante en el edificio presenta una modulación repetitiva y flexible para diversificar el diseño arquitectónico y lograr que los espacios internos se adapten a diferentes necesidades habitacionales. Se compone de dos bloques multifamiliares simétricos con nueve niveles que incorporan módulos habitacionales apilados y conectados por sistemas de circulación vertical y horizontal estratégicamente dispuestos, como se muestra en la Figura 6, y que representan la diversidad, incluso en los dobles niveles, según el tipo de vivienda. Cabe mencionar que cada nivel se compone por módulos estructurales regulares que facilitan la creación de espacios internos adaptables a lo largo, ancho y alto, y cuyos módulos se configuran para diferentes usos, desde viviendas de menor superficie hasta unidades habitacionales más amplias.

Esta propuesta tiene como resultado los siguientes criterios, propuestos por el estudiante para sintetizar la solución arquitectónica:




Figura 6. Corte transversal del complejo habitacional.
Nota: Yahir Eduardo Lezama García (2021).



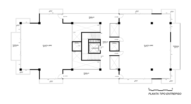
La estructura utiliza un sistema de marcos de concreto y columnas perimetrales, lo que permite liberar los interiores de muros de carga (ver Figura 7). Esto no solo da estabilidad y resistencia al edificio, sino que también asegura que los espacios internos puedan transformarse sin comprometer la integridad estructural. La circulación vertical es a través de núcleos de escaleras y elevadores ubicados al centro de cada bloque, lo que optimiza el acceso a todos los niveles de manera eficiente. La circulación horizontal conecta las unidades habitacionales mediante pasillos amplios que también funcionan como espacios de transición y convivencia.



Figura 7. Planta de entrepiso bajo una estructura modulada

Nota. Yahir Eduardo Lezama García (2021).



Su configuración permite que los espacios internos evolucionen y se diversifiquen en función de las necesidades de los usuarios, por lo que se mantiene un equilibrio entre funcionalidad, estética y sostenibilidad.




Figura 8. Planta de entrepiso bajo una estructura modulada

Nota. Yahir Eduardo Lezama García (2021).



Finalmente, se proyectó una diversificación de ambientación que contribuye a la individualidad de tipos de familias con necesidades espaciales diferentes. Esto cuestiona y plantea que el diseño de diferentes viviendas implica considerar los gustos, necesidades y personalidades de cada familia, lo que refleja una identidad propia.




Figura 9. Estilos y personalización de prototipo de viviendas

Nota. Yahir Eduardo Lezama García (2021).



Por otro lado, se proyectaron espacios comunes flexibles, que son áreas compartidas diseñadas para promover la convivencia y adaptarse a actividades diversas, como reuniones familiares, eventos comunitarios o espacios de trabajo colaborativo y diseño sostenible, mediante la incorporación de estrategias bioclimáticas y materiales sostenibles para garantizar que el complejo sea eficiente en términos energéticos y amigable con el medio ambiente.

Las estrategias de adaptabilidad y flexibilidad en el diseño arquitectónico incluyen al diseño modular, planta libre, nuclearización de servicios y la posibilidad de dividir el espacio interior o unir módulos. Esto permite diversificar el uso de la habitabilidad interna y responder a las necesidades actuales, lo que ofrece soluciones flexibles y sostenibles que se ajustan a los cambios sociales y familiares contemporáneos.

El desarrollo del proceso metodológico permitió comprobar que la comprensión profunda de las transformaciones sociales contemporáneas constituye un detonante fundamental en la creatividad proyectual de los estudiantes. Esta actividad evidenció la necesidad de superar las tipologías rígidas y estandarizadas que aún dominan la producción de vivienda y cuyo proceso empírico amplió la visión de los estudiantes, quienes reconocieron que la arquitectura no sólo debe resolver necesidades espaciales, sino también reflejar la diversidad y pluralidad de los modos de habitar actuales.

En la fase de conceptualización proyectual, los estudiantes desarrollaron sistemas estructurales base capaces de adaptarse a múltiples configuraciones espaciales. A partir de un mismo módulo constructivo, lograron diseñar más de veinte tipologías de vivienda, ajustables en función del número de habitantes, relaciones familiares y estilos de convivencia. Este resultado demostró que la aplicación de principios de flexibilidad y modularidad en la enseñanza del diseño puede generar una arquitectura versátil, sostenible y sensible a las diferencias sociales, sin aumentar los costos constructivos ni comprometer la eficiencia del proyecto.

Durante el desarrollo del complejo habitacional, emergieron propuestas que integraron la diversidad funcional con el sentido comunitario. El estudiante diseñó espacios de uso común que fomentaban la interacción entre habitantes de diferentes tipologías familiares —como patios colectivos, terrazas compartidas o áreas de servicios integradas—, lo que refuerza la idea de comunidad y pertenencia.

La fase de evaluación, en este caso, es la conclusión de su tesis. Esta permitió constatar que las variaciones tipológicas mantenían la coherencia estructural y el desempeño ambiental previstos. Finalmente, el proceso concluyó con una transformación significativa en la percepción del papel del arquitecto. El estudiante reconoció que el diseño no se limita a la resolución formal, sino que constituye un acto social con implicaciones éticas y culturales; así, los resultados demostraron que la pedagogía del diseño puede convertirse en una herramienta eficaz para formar arquitectos capaces de proyectar hábitats más equitativos, adaptables y coherentes con la complejidad de las sociedades actuales.



4. Discusiones


El proyecto arquitectónico desarrollado bajo el título Complejo habitacional multifamiliar para atender la diversidad de vínculos familiares contemporáneos destaca por su enfoque en la flexibilidad y adaptabilidad, que son conceptos centrales en los marcos teóricos analizados. La tesis evidencia que las tipologías rígidas y homogéneas han dejado de ser suficientes para atender las complejidades habitacionales de la sociedad actual, como lo señala la literatura. Al adoptar un diseño modular y plantas libres, el proyecto logra responder a las necesidades variables de los ocupantes, en concordancia con los ejemplos analizados de Habitat 67 y Ausbauhaus Neukölln, que también priorizan la personalización y el dinamismo espacial.

La inclusión de metodologías pedagógicas como el Aprendizaje Activo y el Aprendizaje Basado en Problemas (ABP) es otro punto de intersección clave entre el proyecto y los fundamentos teóricos. Estas herramientas, enfatizadas en la teoría como esenciales para conectar teoría y práctica, se tradujeron en actividades como maquetas físicas y simulaciones digitales en el desarrollo de la tesis. Esto permitió al estudiante explorar configuraciones espaciales innovadoras, lo que materializa los principios teóricos que abogan por una enseñanza arquitectónica que fomente la creatividad y el pensamiento crítico.

En términos estructurales, el proyecto aplica sistemas de marcos de concreto y columnas perimetrales que liberan los interiores de muros de carga, lo que coincide con la propuesta teórica de integrar sistemas estructurales que potencien la flexibilidad. Este diseño no solo garantiza estabilidad y resistencia, sino que también permite modificaciones internas, al cumplir con el principio de adaptabilidad descrito en los marcos teóricos. Al igual que en los proyectos teóricos analizados, esta flexibilidad estructural refuerza la posibilidad de diversificar el uso de los espacios internos. Además, el trabajo recepcional aborda la diversidad familiar contemporánea, un tema recurrente en el fundamento teórico; se destaca que las configuraciones familiares actuales exigen diseños que se adapten a distintas estructuras y necesidades. Las 24 tipologías habitacionales modulares propuestas en el proyecto reflejan esta diversidad, al alinearse con la crítica teórica a las viviendas tradicionales, que no consideran la pluralidad de formas de habitar.

Por último, la inclusión de áreas comunes flexibles y sostenibles en el proyecto reafirma la conexión entre teoría y práctica. Estas áreas no solo fomentan la interacción social, sino que también promueven la sostenibilidad ambiental mediante estrategias bioclimáticas, en línea con la necesidad teórica de replantear la vivienda como un espacio que combine funcionalidad, confort y sostenibilidad. En conjunto, el proyecto demuestra cómo las ideas teóricas pueden transformarse en propuestas arquitectónicas viables que responden a los desafíos habitacionales contemporáneos, lo que marca un avance en la didáctica del diseño arquitectónico.



5. Conclusiones


Las tipologías habitacionales tradicionales, rígidas y homogéneas, han demostrado ser insuficientes para atender las dinámicas familiares contemporáneas, que requieren viviendas más flexibles, adaptables y sostenibles. Los resultados obtenidos evidencian que la flexibilidad y adaptabilidad, soportadas por sistemas estructurales modulares, son elementos esenciales para superar las limitaciones de las tipologías tradicionales y responder eficazmente a las demandas habitacionales de una sociedad en constante transformación.

Asimismo, la implementación de metodologías pedagógicas como el Aprendizaje Activo y el ABP confirma la importancia de un modelo educativo que conecte teoría y práctica, lo que permite a los estudiantes abordar problemas reales con soluciones creativas y técnicamente sólidas. Este enfoque no solo favorece la formación de arquitectos capaces de diseñar viviendas contemporáneas, sino que también fomenta una comprensión integral de la habitabilidad como un concepto que trasciende lo funcional para incluir aspectos sociales, emocionales y ambientales.

Con este trabajo, se cuestiona y evidencia la oportunidad del diseño arquitectónico para aportar a la diversificación de estilos de vivienda, al potencializar las formas de habitar y disminuir el proceso constructivo. Esto articula una respuesta múltiple ante un fenómeno dinámico en la contemporaneidad de la vivienda.

Para sintetizar el potencial de este trabajo, se acentúa que el diseño de edificios con diferentes tipologías de viviendas es una forma de adaptarse a través de una misma estructura con beneficios arquitectónicos, funcionales y sociales; la flexibilidad y accesibilidad de diseños modulares para adaptar los espacios a dinámicas familias sin modificar la estructura principal para reconfigurar áreas interiores; la optimización de espacio para maximizar el uso del suelo en zonas urbanas, al reducir el desperdicio de materiales y huella ambiental; la eficiencia constructiva y económica con la estandarización de estructuras y compartir servicios e infraestructuras; la inclusión y comunidad en edificios que ofrecen áreas comunes para fomentar la convivencia entre vecinos e integración de familias con redes de apoyo mutuo; y también la seguridad al disponer de un control de acceso y vigilancia al concentrarse diferentes familias bajo una misma estructura.

Finalmente, el proyecto desarrollado no solo valida las teorías sobre la importancia de la diversidad, la sostenibilidad y la adaptabilidad en el diseño habitacional, sino que también establece un precedente para la aplicación práctica de estas ideas en contextos reales, lo que hace énfasis en propuestas para el sistema inmobiliario. Esto subraya la necesidad de replantear las tipologías arquitectónicas tradicionales y promover propuestas habitacionales que respondan a las necesidades contemporáneas, lo que fortalece la interacción entre innovación arquitectónica, pedagogía y bienestar social.


Declaración de conflicto de intereses: Los autores declaran no tener conflictos de interés.

Declaración de contribución de los autores: A continuación, se menciona la contribución de los autores, en correspondencia con su participación, mediante la Taxonomía Crédit:



6. Referencias


Baeza, S. (2005). Familia y género: Las transformaciones en la Familia y la trama invisible del Género. Praxis Educativa, 34-42.

Bendezu, V. P., y Ventocilla Nolasco, J. R. (2023). Aplicación de la arquitectura flexible a una propuesta arquitectónica de conjunto residencial de viviendas sociales para la reubicación del A.H. Lomo de Corvina en el distrito de Villa El Salvador – Lima – Perú, 2023. https://repositorio.utp.edu.pe/handle/20.500.12867/8941

Bermúdez Valero, L. (2024). Entre culturas y paredes: explorando la diversidad en la estructuración de interiores residenciales (Bachelor’s thesis, Universitat Politècnica de Catalunya). https://upcommons.upc.edu/handle/2117/401436

Capistrán, R. C. (2023). Modelo pedagógico contemporáneo de epistemología sentimental (Tesis de Licenciatura, UNAM)..

Capulin, R. D., Díaz Otero, K. Y., y Roman Reyes, R. P. (2016). El concepto de familia en México: una revisión desde la mirada antropológica y demográfica. Ciencia ergo-sum, 219-230.

Cassinello, P. (2008). Eduardo Torroja y la industrialización de la” machine à habiter” 1949-1961. Informes de la Construcción, 60(512), 5-18.

Correal Pachón, G. D., y Verdugo Reyes, H. (2011). Sobre modelos pedagógicos y el aprendizaje del proyecto arquitectónico. Revista de Arquitectura, 13, 80-91.

Deilmann, H., Kirschenmann, J., y Pfeiffer, H. (1980). El Hábitat. Gustavo Gili.

Diario Oficial de la Federación. (30 de Abril de 2014). Diario Oficial Cuarta Sección Secretaria de Desarrollo Agrario Territorial y Urbano. Decreto por el que se aprueba el Programa Nacional de Vivienda 2014-2020. https://www.conavi.gob.mx/images/documentos/transparencia/rendicion_cuentas/Programa%20Nacional%20de%20Vivienda,%202014-2018.pdf

Diaz, C., y Milenia, Y. (2007). Vivienda obrera, ¿un elementos apaciguador o modernizador? La intervención del Estado en Bogotá 1918-1942. Revista de Arquitectura, 9, 5-12. https://www.redalyc.org/pdf/1251/125112650002.pdf

Fisch, S., Etulain, J., y Pagani, G. (2011). Problemáticas conceptuales para el diseño de la vivienda contemporánea. Cuaderno urbano. Espacio, cultura y sociedad, 27-57.

French, H. (2008). Vivienda colectiva paradigmática del siglo XX. Gustavo Gili.

Mansur, J. C. (2020). A 100 años de la Bauhaus. Estudios 135, XVIII, 129-142.

Norberg-Schulz, C. (1975). Nuevos Caminos de la arquitectura. Existencia, espacio y arquitectura. Blume.

Pascual, J. (2019). Hábitat 67 Moshe Safdie. MARQ. Componente de Arquitectura Pedro Alonso 9. SCRIBD. https://es.scribd.com/document/454895617/HABITAT-67-Jaime-Pascual

Praeger Richter, A. (2014). Ausbauhaus Neukölln / Berlin 2014. Praeger Richter. https://praegerrichter.de/Ausbauhaus-Neukolln-Berlin-2014

Ramos Matta, R. A., y Jiménez Nayra, M. Y. (2023). Implementación del Last Planner System para reducir la variabilidad en tiempo y costo en la obra Edificio Multifamiliar Bernales en la etapa de estructuras (casco) en el distrito Surquillo, 2022. https://repositorio.utp.edu.pe/handle/20.500.12867/7600?show=full

Restrepo Gómez, B. (2005). Aprendizaje basado en problemas (ABP): una innovación didáctica para la enseñanza universitaria. Obtenido de Educación y Educadores, vol. 8, 2005, pp. 9-19 Universidad de La Sabana Cundinamarca, Colombia: https://www.redalyc.org/pdf/834/83400803.pdf

Restrepo, R. (2018). Aprendizaje Activo para el aula: una síntesis de fundamentos y técnicas. UNAE Cuaderno de Política Educativa, 2. https://unae.edu.ec/wp-content/uploads/2019/11/cuaderno-2.pdf

Sánchez Bobadilla, C. (2022). La identidad barrial frente a los nuevos proyectos inmobiliarios. Red de Repositorios Latinoamericanos. https://bibliotecadigital.academia.cl/items/262cad24-dde3-447a-82f9-9b11a30bc8dd

Sarmiento, O. J. (2017). Vivienda industrializada: antecedentes en el mundo y propuesta al déficit de vivienda social en Colombia. Cuadernos de vivienda y Urbanismo, 10(20). https://revistas.javeriana.edu.co/index.php/cvyu/article/view/19842

Vásquez Rúa, C. (2005). Las nuevas tipologías familiares y los malestares interrelacionales que se suscitan en ellas. Revista Virtual Universidad Católica del Norte, 1-21.

Zabala, M. M. (2019). Las tecnologías en la reconfiguración de los modelos pedagógicos contemporáneos. Revista Dilemas Contemporáneos, (3), 1-16.