Estrategias de Diseño Pasivo para Edificaciones

en Altura en la Ciudad de Madrid: Enfoque en el Confort

Térmico y Lumínico


Passive Design Strategies for High-Rise

Buildings in the City of Madrid: Focus on Thermal

and Lighting Comfort






Patricio Simbaña Escobar

Universidad UTE, Ecuador


patricio.simbana@ute.edu.ec

0000-0002-9172-1457




Luis Miguel Bermejo Jauregui

Investigador Independiente, Ecuador


luis.bermejo@ute.edu.ec

0009-0008-4262-3560




Cristian Omar Bravo Fichamba

Investigador Independiente, Ecuador


cristian.bravo@ute.edu.ec

0009-0003-0423-1033




Ariel Sebastián Ortega Vasco

Investigador Independiente, Ecuador


ariel.ortega@ute.edu.ec

0009-0009-3902-461X

Recibido: 11/07/2025

Aceptado: 19/11/2025















Resumen


El presente artículo de investigación expone una investigación orientada al desarrollo de estrategias de diseño pasivo para una edificación ubicada en Madrid, España, enfocada en garantizar el confort térmico y lumínico de sus usuarios, a partir de las condiciones climáticas locales. Madrid presenta un clima mediterráneo continental caracterizado por veranos calurosos, inviernos fríos y alta variabilidad térmica estacional, lo que exige una respuesta arquitectónica específica. La metodología empleada integró herramientas digitales como Climate Consultant 6.0, Rhinoceros 7, con el plugin Ladybug, y Revit, con Daylight Energy Analysis; estas permitieron simular el comportamiento ambiental del edificio en distintas estaciones del año. Se analizaron parámetros como radiación solar, ventilación natural, temperatura e iluminación para diseñar soluciones arquitectónicas adaptadas al sitio. Entre los principales resultados, destacan mejoras significativas en los indicadores de iluminación natural: en las plantas tipo del edificio, el porcentaje de espacios que superan el umbral recomendado aumentó hasta un 74% y el ADF alcanzó valores de hasta 11,7%, lo que refleja un mayor aprovechamiento de la luz diurna. Asimismo, el análisis de vientos y recorrido solar guió la orientación y configuración volumétrica del edificio para favorecer la ventilación cruzada y reducir la ganancia térmica en verano. La investigación concluye que la integración temprana de herramientas digitales permite tomar decisiones proyectuales más eficientes y sostenibles, lo que reduce la dependencia de sistemas activos y mejora el desempeño ambiental de las edificaciones en climas extremos como el de Madrid.


Palabras clave: Diseño bioclimático, confort térmico, eficiencia energética, protección solar, iluminación natural, sostenibilidad.






Abstract


This research article presents a study focused on developing passive design strategies for a building located in Madrid, Spain, aiming to ensure thermal and lighting comfort for its occupants based on local climatic conditions. Madrid has a continental Mediterranean climate, marked by hot summers, cold winters, and high seasonal thermal variability, which requires a specific architectural response. The methodology integrated digital tools such as Climate Consultant 6.0, Rhinoceros 7 with the Ladybug plugin, and Revit with Daylight Energy Analysis to simulate the environmental behavior of the proposed building across different seasons. Parameters such as solar radiation, natural ventilation, temperature, and daylight were analyzed to generate site-adapted design solutions. Key results highlight significant improvements in natural lighting indicators: in the typical floor layouts, the percentage of spaces exceeding the recommended threshold increased to 74%, and the ADF reached values up to 11.7%, reflecting greater use of daylight. In addition, wind and solar path analysis informed the building’s orientation and volumetric configuration to promote cross ventilation and reduce heat gain during summer. The research concludes that the early integration of digital tools supports more efficient and sustainable design decisions, reducing the need for mechanical systems and enhancing the environmental performance of buildings in extreme climates such as that of Madrid.


Keywords: Bioclimatic design, thermal comfort, energy efficiency, solar protection, natural lighting, sustainability.




1. Introducción


A lo largo de las últimas décadas, el diseño arquitectónico sostenible ha cobrado una importancia creciente ante la necesidad de reducir el impacto ambiental del entorno construido y mejorar la calidad de vida de los usuarios. Dentro de este enfoque, el diseño pasivo se posiciona como una estrategia esencial para optimizar el comportamiento térmico y lumínico de los edificios, sin recurrir a sistemas mecánicos. En este contexto, la ciudad de Madrid representa un caso particularmente desafiante. Su clima mediterráneo continental se caracteriza por una alta insolación anual, escasas precipitaciones y amplias oscilaciones térmicas entre estaciones, con inviernos rigurosos e intensos episodios de calor durante el verano (Fernández y Rasilla, 2008). Estas condiciones extremas, combinadas con fenómenos urbanos como la isla de calor, generan un escenario climático complejo que incide directamente en el confort interior y la eficiencia energética de las edificaciones (Rasilla et al., 2016).

Las temperaturas registradas en Madrid evidencian la necesidad de soluciones arquitectónicas adaptativas: en invierno, las medias oscilan en torno a 5 °C, con mínimas cercanas a 0 °C, mientras que en verano se alcanzan máximas promedio de 33 °C, que pueden superar los 37 °C en los días más calurosos (Madrid Climate, 2025). La orientación solar y la ventilación natural también juegan un papel determinante. Durante el verano, el sol alcanza una altura de hasta ٧٣,٤°, lo que genera sombras cortas, mientras que en invierno desciende a 26,6°, lo que provoca sombras alargadas que afectan la ganancia térmica (Erell, 2012). En paralelo, los vientos dominantes —del suroeste, de día, y del noreste, por la noche— ofrecen oportunidades para potenciar la ventilación cruzada, siempre que el edificio sea correctamente orientado y sus aberturas estén estratégicamente ubicadas (Higueras, 1998). A su vez, la urbanización densa de Madrid favorece la reflexión múltiple de la radiación solar en fachadas y pavimentos, lo que intensifica la temperatura del aire urbano y altera el balance energético local (Bilbao et al., 2008).

Frente a este panorama, la presente investigación se orienta a comprender cómo las condiciones climáticas de Madrid deben influir en las decisiones de diseño arquitectónico para alcanzar un desempeño térmico y lumínico óptimo, para minimizar la dependencia de sistemas activos. Se plantea que la integración temprana de estrategias pasivas, basadas en un análisis detallado del contexto climático, permite optimizar el confort interior a lo largo de todo el año. Esta hipótesis se fundamenta en una aproximación integral que contempla simultáneamente el control solar, la ventilación natural, el aislamiento térmico y el aprovechamiento de la luz diurna como pilares de un diseño bioclimático eficiente. Aunque investigaciones previas han explorado estas estrategias en otros contextos, son escasos los estudios que aborden, de forma integral, su aplicación en un clima mediterráneo continental como el de Madrid (Carmenado, 2016). La novedad de esta investigación radica en desarrollar una propuesta arquitectónica basada en simulaciones digitales, mediante herramientas como Climate Consultant, Ladybug y Revit Insight, que evalúan el comportamiento térmico y lumínico del edificio a lo largo del año. Se ajusta su forma, orientación y elementos constructivos según los datos climáticos del sitio.

El objetivo principal de este estudio es identificar criterios técnicos de diseño pasivo que respondan a las características del clima madrileño, para proponer soluciones arquitectónicas sostenibles que aseguren el confort térmico y visual de los usuarios. De manera particular, se busca determinar qué estrategias arquitectónicas y constructivas son más eficaces para enfrentar las condiciones extremas de cada estación, reducir el consumo energético y mejorar la habitabilidad interior. Con ello, se pretende ofrecer una base teórica y práctica útil para arquitectos y urbanistas, que sirva como referencia para el diseño de edificaciones resilientes en climas similares. Así, esta investigación contribuye a la generación de conocimiento aplicado en el campo de la arquitectura sustentable, lo que refuerza el papel del diseño pasivo como herramienta clave ante los desafíos climáticos.



2. Metodología


La metodología adoptada integró herramientas digitales de simulación climática y energética para desarrollar estrategias pasivas de diseño adaptadas al clima de Madrid. En primer término, se realizó un análisis climático detallado mediante Climate Consultant 6.0, un software que emplea datos meteorológicos (formato EPW) para generar la carta psicrométrica y guías de diseño específicas al clima local. Esta herramienta permitió identificar las estrategias pasivas óptimas en función de los rangos típicos de temperatura y humedad de Madrid (Simbaña et al., 2025).

De hecho, Climate Consultant traduce los datos climáticos en gráficos comprensibles y recomendaciones de diseño bioclimático específicas para el sitio, lo que facilita la selección de medidas pasivas adecuadas (Milne et al, 2009). La importancia de este análisis psicométrico en arquitectura bioclimática ha sido destacada por Teitelbaum (2024), quien señala que estudiar conjuntamente la humedad relativa y la temperatura permite concebir estrategias de diseño capaces de mantener el confort térmico sin consumo energético adicional. Este análisis climático inicial sentó las bases para orientar el diseño pasivo, al identificar necesidades de calefacción pasiva en invierno, ventilación y sombreamiento en verano, y otras medidas pertinentes al clima de Madrid.

Con los criterios climáticos definidos, la siguiente fase empleó modelado paramétrico 3D para evaluar la geometría solar y eólica del sitio. Se utilizó Rhinoceros 7, junto con el complemento Ladybug, el cual permite importar los datos EPW de Madrid y generar gráficos interactivos en 2D y 3D que respaldan las decisiones de diseño sostenible (Roudsari et al., 2013). A través de esta plataforma, se analizó la posición solar estacional, lo que determinó que, en los solsticios, el sol alcanza aproximadamente 70° de altura en verano y 30°, en invierno. Esta información permitió evaluar, con precisión, la incidencia de la radiación solar sobre el edificio y su impacto en la iluminación natural y las sombras proyectadas, tanto en espacios exteriores como interiores.

Además de la radiación solar, Ladybug generó una rosa de vientos para la ciudad, al identificar flujos de aire predominantes del norte, noreste y suroeste. Este análisis de ventilación resultó fundamental para definir la orientación óptima del edificio, así como la ubicación estratégica de aperturas y balcones, lo que favoreció la ventilación cruzada natural, sin recurrir a climatización mecánica. Cabe resaltar que Santamouris et al. (2010) subraya cómo la ventilación natural puede mejorar significativamente la calidad del aire interior y las condiciones térmicas de un edificio. Este respaldo teórico refuerza la importancia de considerar el régimen de vientos locales en el diseño pasivo.

En paralelo, se incorporó el uso de herramientas BIM para cuantificar la exposición solar de la propuesta arquitectónica. Mediante Autodesk Revit 2023, junto con el módulo Forma, y Lighting Energy Analysis, se llevaron a cabo simulaciones energéticas de radiación solar e iluminación sobre el modelo tridimensional del edificio. El software generó mapas de radiación en la envolvente arquitectónica, al emplear una escala cromática de tonos rojos para zonas de alta insolación y azules para áreas sombreadas, lo que permitió identificar puntos críticos (López et al., 2025).

Con esta información, se realizaron ajustes en elementos de diseño (como voladizos y balcones), a fin de mitigar el sobrecalentamiento estival, sin sacrificar la ganancia solar invernal. De hecho, las propias guías técnicas de Autodesk describen metodologías para calcular áreas sombreadas en Revit como apoyo al diseño sostenible, lo que avala el rigor de este procedimiento. Estas simulaciones proporcionaron un contexto de análisis detallado que permiten la toma de decisiones sobre el dimensionamiento y ubicación de elementos de sombreamiento pasivo, lo que garantiza que la configuración final del edificio aproveche la energía solar de forma equilibrada a lo largo del año.

La eficacia de integrar estas simulaciones digitales en etapas tempranas de diseño cuenta con amplio respaldo en la literatura científica. De hecho, Cillari et al. (2021) señalan que la correcta incorporación de soluciones solares pasivas, apoyada por simulaciones de radiación, optimiza la eficiencia energética del edificio desde las fases iniciales del proyecto. Del mismo modo, Toroxel et al. (2024) concluyen que ciertos componentes arquitectónicos (como balcones acristalados y voladizos) pueden contribuir significativamente al control térmico pasivo, en especial bajo climas con marcadas diferencias estacionales. Estas evidencias refuerzan la validez del enfoque adoptado, en el que las herramientas digitales no solo visualizan el desempeño ambiental, sino que también orientan al diseñador hacia soluciones con comprobado impacto en el confort térmico y la eficiencia del edificio.

Adicionalmente, se llevó a cabo un estudio detallado del recorrido solar estacional para afinar las decisiones de implantación y diseño. Mediante simulaciones de la trayectoria solar a lo largo del año, se evaluó la proyección de sombras del edificio en los solsticios de verano e invierno, al ajustar su orientación y forma para maximizar la ganancia solar en invierno y minimizar la exposición directa en verano.

Este análisis permitió prever cómo la altura solar y el ángulo de incidencia en cada estación afectarían a la captación de calor y luz natural. En el diseño solar pasivo, la clave radica en aprovechar las condiciones climáticas locales mediante una comprensión precisa del sitio. Por ello, se consideraron, de forma integrada, múltiples factores: la ubicación y tamaño de las ventanas, el tipo de acristalamiento propuesto, los niveles de aislamiento térmico en la envolvente, la masa térmica disponible en la estructura y la incorporación de sistemas de sombreamiento adecuados (Cillari et al., 2021). Estos estudios garantizan que la edificación responda eficazmente a las variaciones estacionales de Madrid, al mantener interiores más cálidos en invierno y más frescos en verano, sin recurrir excesivamente a sistemas activos.

En síntesis, la metodología desarrollada integra, de manera holística, diversas herramientas digitales de análisis climático, lo que permite una evaluación rigurosa del desempeño térmico y lumínico del edificio, bajo las condiciones climáticas específicas de Madrid. La combinación de análisis climático, modelado paramétrico 3D y simulaciones de radiación solar proporcionó información cuantitativa valiosa para tomar decisiones informadas desde las primeras etapas del diseño arquitectónico.

Como resultado, fue posible posicionar estratégicamente componentes arquitectónicos como balcones, voladizos y ventanas, de modo que se optimizara la captación de luz y calor en invierno, a la vez que se redujo la exposición solar excesiva durante el verano (Simbaña et al., 2020). De este modo, las soluciones de diseño propuestas aseguran condiciones de confort térmico y lumínico más estables a lo largo del año, lo que disminuye la dependencia de climatización artificial. Diversos estudios subrayan los beneficios energéticos, económicos y ambientales de integrar estrategias pasivas en edificaciones (Elaouzy y El Fadar, 2022; Syed Wali Uddin et al., 2025), por lo que la presente metodología se alinea con las mejores prácticas internacionales de diseño sostenible.



3. Resultados




Figura 1. Ubicación Isométrica del proyecto

Nota. De elaboración propia, a partir del uso del software SketchUp 2023.



El análisis integral del clima local y las simulaciones realizadas evidencian condiciones ambientales extremas en Madrid y demuestran la eficacia de las estrategias de diseño pasivo propuestas. Los datos climáticos confirman grandes oscilaciones térmicas estacionales, con veranos muy cálidos e inviernos fríos, lo que exige soluciones bioclimáticas específicas. Las simulaciones solares y de viento muestran qué orientaciones y aperturas resultan más favorables para maximizar la ventilación natural y controlar la radiación solar. En cuanto al desempeño lumínico, los resultados cuantitativos revelan mejoras sustanciales en la iluminación natural interior del edificio, tras implementar las estrategias pasivas: aumentó el porcentaje de espacios que superan los niveles recomendados de iluminación diurna (que alcanzan hasta un 74 % de cobertura) y se lograron factores de luz diurna (ADF) elevados (en el orden de 10–12 %). Esto reduce, significativamente, las áreas en penumbra. A continuación, se describen detalladamente estos hallazgos, de forma estrictamente descriptiva y separada de cualquier interpretación o discusión.

El edificio se emplaza en un terreno situado entre las calles Pedro Suárez y Fernando Alfonso Díaz, frente a una serie de locales comerciales (ver Figura 1), en la ciudad de Madrid, España. La zona se caracteriza por edificaciones de baja y media altura, con construcciones que oscilan entre cuatro y seis plantas, lo cual contribuye a un entorno urbano menos densificado y carente de estructuras de gran envergadura.




Figura 2. Rango de Temperaturas de Madrid (Análisis Climático del sitio)

Nota. De elaboración propia, a partir del uso del software Climate Consultant 6.0.



La Figura 2 muestra el rango de temperatura de Madrid (España) según datos ASHRAE 2005, donde se evidencia un clima mediterráneo continental, con marcadas variaciones térmicas anuales. Las temperaturas medias oscilan entre 6 °C, en enero, y 26 °C, en julio, mientras que los valores extremos registrados van desde –5 °C hasta 40 °C. Durante el invierno (diciembre a febrero) predominan temperaturas por debajo de la zona de confort térmico (20–26 °C, a 50 % de humedad relativa), por lo que se requieren estrategias de calefacción y ganancia solar pasiva. En contraste, los meses de verano (junio a agosto) presentan valores que superan ampliamente el límite superior del confort, lo que evidencia la necesidad de ventilación natural y control solar. El gráfico anual confirma que solo una fracción reducida del año se mantiene dentro del rango confortable, lo que resalta la importancia del diseño bioclimático para optimizar el desempeño térmico de las edificaciones en esta ciudad.




Figura 3. Carta Psicométrica de Madrid (Análisis Climático / Zona de Confort)

Nota. De elaboración propia, a partir del uso del software Climate Consultant 6.0.



La carta psicométrica de Madrid (Figura 3) muestra que, durante la mayor parte del año, las condiciones climáticas de la ciudad se sitúan fuera de la zona de confort térmico. Esto significa que la temperatura y la humedad relativa no permanecen de forma constante dentro del rango considerado óptimo para el confort humano, sin la intervención de sistemas activos de climatización.

Entre las estrategias más relevantes se encuentran la ganancia interna de calor (29.6 %, 2585 h), la calefacción combinada con humidificación (33.9 %, 2971 h) y la captación solar pasiva con alta masa térmica (16.5 %, 1450 h); todas ellas son fundamentales durante los meses de invierno. Durante el verano, predominan soluciones como el sombreamiento de ventanas (10.4 %, 914 h), la ventilación nocturna (9.4 %, 823 h) y el enfriamiento evaporativo (entre el 5 % y el 9 %).

En conjunto, el análisis psicrométrico evidencia que Madrid presenta un clima caracterizado por su aridez y extremada variabilidad térmica. En este contexto, el uso eficiente de la masa térmica, una adecuada orientación solar y el control de la ventilación natural resultan estrategias clave para alcanzar el confort térmico y mejorar la eficiencia energética. Todo ello subraya la importancia de un diseño bioclimático adaptado a las variaciones estacionales, con el objetivo de reducir la dependencia de sistemas mecánicos de climatización.




Figura 4. Rango de Iluminación de Madrid (Análisis Climático del sitio)

Nota. De elaboración propia, a partir del uso del software Climate Consultant 6.0.



La Figura 4 presenta el rango de iluminación horaria diurna para Madrid (España), donde se evidencia una alta disponibilidad lumínica a lo largo del año, con valores promedio que oscilan entre 30 000 lux en invierno y más de 100 000 lux en verano. Los valores máximos de iluminancia directa normal (barras verdes) se registran entre mayo y julio, donde se alcanzan picos de 110 000 lux, mientras que la iluminancia global horizontal (barras amarillas) se mantiene ligeramente inferior, con promedios de 80 000 lux en los mismos meses. Durante el invierno (diciembre–febrero), las iluminancias descienden por debajo de 40 000 lux, lo que refleja la menor duración del día y el bajo ángulo solar. En conjunto, el gráfico confirma que Madrid dispone de una radiación solar elevada y estable durante la mayor parte del año, lo que favorece el aprovechamiento de la luz natural en edificaciones y refuerza el potencial del diseño pasivo orientado a la eficiencia energética y al confort visual.

El análisis del recorrido solar permite identificar qué fachadas de un edificio reciben mayor cantidad de luz natural en cada estación del año, así como determinar los momentos del día en los que la radiación solar es más intensa. Este estudio aporta información clave sobre la altura solar en el firmamento y el ángulo de incidencia de la radiación, tanto durante los días fríos del invierno como en los meses cálidos del verano. Para calcular la proyección de sombra de un edificio, se considera su altura —en este caso, aproximadamente 120 metros— y la posición del sol en distintos momentos del día.

Las Figuras 5 y 6 ilustran el recorrido solar y la proyección de sombras de un edificio de 120 metros de altura en la ciudad de Madrid, donde se comparan las condiciones solares durante los solsticios de diciembre y junio. En invierno (21 de diciembre), el sol alcanza una altura máxima de 22,6°, lo que da lugar a sombras alargadas que se extienden hasta 345 metros por la mañana (10:00 h) y 288 metros por la tarde (14:00 h), con acimutes de 147,9° y 189,5°, respectivamente. Por el contrario, en verano (21 de junio), el sol alcanza elevaciones significativamente mayores —68,8° a las 14:00 h y 53,9° a las 10:00 h—, lo que reduce la longitud de las sombras a 46,5 y 87,3 metros, respectivamente.

Este contraste estacional pone de manifiesto la considerable variación en la incidencia solar, lo cual tiene implicaciones directas en el diseño bioclimático y urbano. Durante el invierno, se favorece la captación solar pasiva, mientras que, en verano, se prioriza el control de la radiación mediante elementos de sombreamiento, como voladizos u otros dispositivos arquitectónicos.




Figura 5. Recorrido Solar y Proyección de Sombra 21 de diciembre (Solsticio Invierno)

Nota. De elaboración propia, a partir del uso de software Carta Estereográfica (DrajMarsh 2025).






Figura 6. Recorrido Solar Proyección de Sombra 21 de junio (Solsticio Verano)

Nota. De elaboración propia, a partir del uso del software Carta Estereográfica (DrajMarsh 2025).



El cálculo de la Proyección de Sombra se obtiene de la siguiente forma:





Por su parte, la Figura 7 presenta la distribución anual de la radiación solar incidente sobre un edificio ubicado en Madrid (España), medida en kWh/m². Los datos reflejan una notable variación en función de la orientación, con una mayor concentración de radiación en las fachadas suroeste y sureste, donde se registran valores máximos de hasta 1062,8 kWh/m². En contraste, las superficies orientadas al norte y noreste muestran los niveles más bajos, por debajo de 212,5 kWh/m². Este comportamiento responde a la interacción entre la orientación arquitectónica y el recorrido solar típico del clima mediterráneo continental de la región.




Figura 7. Rosa de Radiación Madrid

Nota. De elaboración propia, a partir del uso del software Rhinoceros 7 plugin Ladybug 2024.



Las fachadas este y oeste, que reciben niveles intermedios de radiación (entre 425 y 743 kWh/m²), destacan por su exposición alternante: la orientación este capta la radiación matutina, mientras que la oeste recibe una mayor carga térmica en las horas vespertinas, particularmente durante el verano. Este análisis pone de manifiesto la necesidad de integrar estrategias pasivas de control solar —como voladizos, celosías o elementos vegetales— que permitan maximizar las ganancias térmicas en invierno y limitar la incidencia solar en los meses más cálidos, lo que favorece el confort térmico interior.

La representación mediante rosa de radiación aporta una visión clara de la procedencia de la energía solar, lo cual facilita la toma de decisiones en cuanto a la protección solar específica por orientación. En particular, la fachada sur destaca como una de las más expuestas, lo que la convierte en una candidata idónea para la captación solar en invierno, siempre que se implementen mecanismos de sombreado eficaces durante el verano.

Finalmente, el análisis global evidencia que Madrid dispone de una excelente disponibilidad de luz natural a lo largo del año, especialmente en primavera y verano, lo que favorece el diseño de edificaciones bioclimáticas que prioricen la eficiencia energética mediante una adecuada gestión de la radiación solar.




Figura 8. Rosa de Vientos Madrid

Nota. De elaboración propia, a partir del uso del software Rhinoceros 7 plugin Ladybug 2024.



La Figura 8 presenta la rosa de vientos anual de Madrid (España), elaborada con datos horarios de velocidad y dirección del viento (m/s) para el periodo comprendido entre el 1 de enero y el 31 de diciembre. Se observa que las corrientes predominantes provienen del norte y noroeste, y alcanzan velocidades medias entre 5 y 10 m/s, con picos máximos superiores a 15 m/s. Los vientos del suroeste y este son menos frecuentes y de menor intensidad, generalmente inferiores a 5 m/s. El gráfico indica que las condiciones de calma representan el 32.66 % del tiempo anual, equivalente a 2861 horas. Este patrón eólico evidencia una ventilación natural efectiva hacia las fachadas norte y noroeste, lo que resulta clave para el diseño pasivo y la disposición de aberturas, lo que permite aprovechar la ventilación cruzada en periodos cálidos y controlar las pérdidas térmicas en invierno.

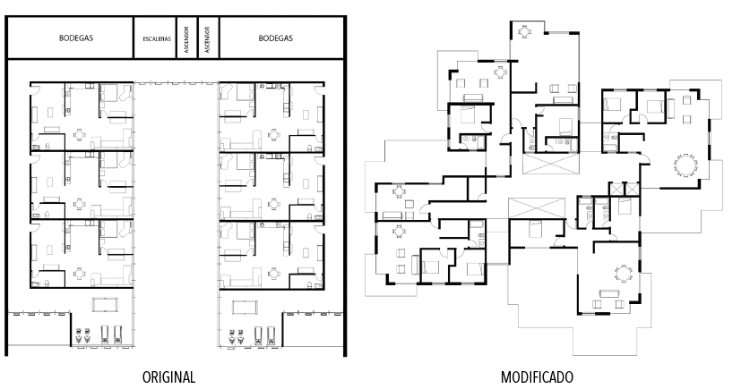
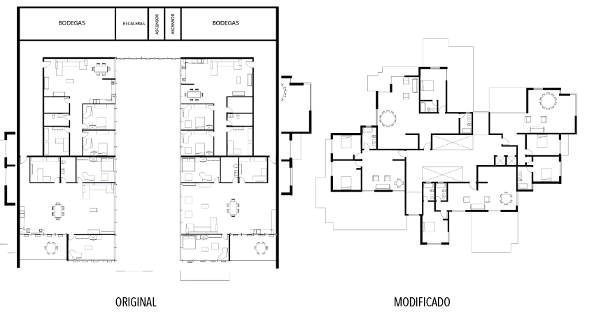
Las Figuras 9, 10, y 11 presentan las plantas tipo correspondientes a los niveles bajos, intermedios y altos, respectivamente. En el lado izquierdo, se muestra la configuración inicial, caracterizada por la incorporación de un vacío rectangular central que genera una planta en forma de “U”. En contraste, al lado derecho se observa la planta resultante tras el proceso de optimización lumínica, de ventilación y de captación de radiación solar. Esta versión final incorpora varios vacíos perimetrales y la conformación de balcones, los cuales permiten un mejor ingreso de luz natural y una mayor calidad ambiental en los espacios interiores.




Figura 9. Planta Arquitectónica Tipo 1

Nota. De elaboración propia, a partir del uso del software Revit 2023.






Figura 10. Planta Arquitectónica Tipo 2

Nota. De elaboración propia, a partir del uso del software Revit 2023.






Figura 11. Planta Arquitectónica Tipo 3

Nota. De elaboración propia, a partir del uso del software Revit 2023.




Figura 12. Análisis de Iluminación LUXES / Planta Tipo 1

Nota. De elaboración propia, a partir del software Revit 2023, plugin (Lighting Energy Analysis)



Con respecto a la Figura 12, compara el análisis de iluminación natural (en lux) entre el modelo original y la versión modificada del edificio tipo 1 en Madrid, donde se evidencia una mejora significativa en la distribución y cantidad de luz diurna. En el modelo original, solo el 11 % de los espacios supera el umbral mínimo de iluminación, con un 64% de áreas por debajo del nivel adecuado. En contraste, el modelo modificado alcanza un 35% de cumplimiento global, con un 62% de las áreas por encima del umbral y valores máximos de hasta 6000 lux en zonas perimetrales y orientadas al sur. Los horarios de análisis muestran incrementos notables: a las 10:00 a.m., la radiación global horizontal (GHI) pasa de 24 a 597 W/m², y a las 2:00 p.m., de 360 a 864 W/m², lo que evidencia una mayor captación lumínica gracias a las mejoras en orientación y apertura. En conjunto, los resultados confirman que la propuesta modificada optimiza el aprovechamiento de la luz natural, lo que reduce el consumo energético y mejora el confort visual interior.




Figura 13. Análisis de Iluminación LUXES / Planta Tipo 2

Nota. De elaboración propia, a partir del uso del software Revit 2023, plugin (Lighting Energy Analysis).



La Figura 13 y la Figura 14 comparan el desempeño lumínico entre los modelos originales y modificados de las plantas tipo 2 y tipo 3 del edificio, lo que evidencia mejoras sustanciales en la captación de luz natural tras la intervención arquitectónica. En la planta tipo 2, el modelo original apenas alcanza un 13% de cumplimiento del umbral de iluminación, con un 58% de los espacios por debajo del nivel recomendado; en contraste, la versión modificada incrementa el cumplimiento al 56%, lo que reduce las áreas deficitarias al 18% y alcanza valores puntuales superiores a 6000 lux en zonas perimetrales. De manera similar, en la planta tipo 3, el modelo original presenta un 16% de cumplimiento, mientras que el diseño modificado logra un 36%, con un 63% de los espacios por encima del umbral mínimo. Además, los análisis horarios muestran mejoras notables: a las 10:00 a. m., la radiación global horizontal (GHI) se eleva de 24 a 597 W/m², y a las 2:00 p. m. de 360 a 864 W/m², lo que evidencia un incremento en la eficiencia lumínica derivado de la reorganización espacial y el aumento de superficies expuestas a la luz diurna. En conjunto, las modificaciones arquitectónicas optimizan significativamente la iluminación natural, lo que reduce la dependencia de luz artificial y mejora el confort visual en todas las tipologías analizadas.




Figura 14. Análisis de Iluminación LUXES / Planta Tipo 3

Nota. De elaboración propia, a partir del uso del software Revit 2023, plugin (Lighting Energy Analysis).






Figura 15. Análisis Factor de Luz Diurna (ADF) / Planta Tipo 1

Nota. De elaboración propia, a partir del uso del software Revit 2023, plugin (Lighting Energy Analysis).



La Figura 15 muestra el análisis del factor de luz diurna (Daylight Factor) en la planta arquitectónica tipo ubicada en niveles bajos del edificio, al evaluar la distribución y calidad de la iluminación natural en un día estándar. Los resultados indican que el 69% de las áreas analizadas superan el umbral mínimo recomendado, con un promedio global (ADF) del 11.7 %, valor que evidencia una buena penetración de luz natural. Las zonas más iluminadas, representadas en tonos rojos y amarillos, se concentran hacia los perímetros y fachadas, donde se alcanzan niveles superiores al 20%, mientras que las áreas internas en tonos azules presentan valores inferiores al 10%, correspondientes a espacios con menor acceso directo a luz natural. En conjunto, el análisis confirma que el diseño volumétrico y la disposición de vanos permiten un aprovechamiento eficiente de la iluminación diurna, lo que reduce la dependencia de sistemas artificiales y mejora el confort visual de los usuarios.




Figura 16. Análisis Factor de Luz Diurna (ADF) / Planta Tipo 2

Nota. De elaboración propia, a partir del uso del software Revit 2023, plugin (Lighting Energy Analysis).



La Figura 16 muestra el análisis del factor de luz diurna (Daylight Factor) correspondiente a la planta intermedia del edificio, donde se evidencia una mejora general en la distribución lumínica interior en comparación con la imagen original situada a la izquierda. Los resultados indican un incremento del 8% respecto al modelo inicial, al alcanzar un 74% de los espacios que superan el umbral mínimo de iluminación natural, con un promedio global (ADF) del 10,1%. Las zonas perimetrales, representadas en tonos rojos y amarillos, registran valores superiores al 20 %, lo que refleja una excelente captación de luz natural. En contraste, las áreas interiores, mostradas en tonos verdes y azules, mantienen niveles moderados de entre el 5% y el 10%. Solo un 14% de los espacios se encuentra por debajo del umbral recomendado, al ubicarse principalmente en sectores con obstrucciones físicas o limitada exposición solar. En conjunto, el modelo analizado presenta un desempeño lumínico eficiente, lo que favorece el confort visual de los ocupantes y contribuye a la reducción del consumo energético vinculado a la iluminación artificial.




Figura 17. Análisis Factor de Luz Diurna (ADF) / Planta Tipo 3

Nota. De elaboración propia, a partir del uso del software Revit 2023, plugin (Lighting Energy Analysis).



La Figura 17 presenta los resultados del análisis del factor de luz diurna (Daylight Factor) aplicado a una planta tipo ubicada en los niveles superiores del edificio. En el modelo original, se observa una distribución limitada de iluminación natural, con apenas un 48% de cobertura a lo largo de los espacios interiores. En contraste, la propuesta modificada revela una mejora significativa, donde el 73% de las áreas supera el umbral mínimo establecido para iluminación natural, por lo que alcanza un factor medio global (ADF) del 11,4%. Las zonas con mayor acceso a luz natural se sitúan en los perímetros de la planta y se representan mediante tonos rojos y amarillos, lo que indica niveles superiores al 20 %. Por su parte, las áreas interiores, mostradas en tonalidades verdes y azules, mantienen valores comprendidos entre el 5% y el 10 %. Cabe destacar que solo el 8% de los espacios permanece por debajo del umbral de confort lumínico, lo que evidencia un aprovechamiento eficaz de la radiación solar diurna. En conjunto, el desempeño lumínico del diseño arquitectónico propuesto refleja una elevada eficiencia, lo que promueve el confort visual de los usuarios y contribuye a la disminución del consumo energético asociado a la iluminación artificial.



Antes:




Figura 18. Corte / Mayor ingreso de iluminación

Nota. De elaboración propia, a partir del uso del software Revit 2023 y Photoshop CC2023.



La Figura 18 muestra un corte longitudinal del edificio original (estado existente) en el cual se evalúa la penetración de luz natural. Se evidencia que la incidencia solar directa solo alcanza ciertas zonas próximas a las aberturas disponibles, mientras que grandes porciones del interior permanecen en penumbra o con niveles mínimos de iluminación diurna. Esta distribución deficiente sugiere que la configuración volumétrica actual y la escasez/disposición subóptima de vanos limitan severamente la captación y difusión de la luz solar hacia el fondo de los espacios. Tras la intervención de diseño pasivo, se observan los cortes longitudinales obtenidos para condiciones de invierno y verano.

Las Figuras 19, y 20 muestran una mejora en la profundidad de ingreso de la luz natural al interior. En el escenario de invierno, con el sol relativamente bajo (≈ 30° de altura solar), la radiación penetra de forma más tangencial y aún no logra iluminar plenamente las zonas más profundas hasta bien avanzado el día; algunas áreas continúan recibiendo luz de forma tardía, debido a sombras proyectadas por la propia estructura u obstáculos circundantes. No obstante, en el escenario de verano, el sol alcanza elevaciones altas (≈ 70° al mediodía), por lo que ilumina la mayor parte de los ambientes interiores, incluso en las plantas inferiores. Comparativamente, puede observarse que la propuesta arquitectónica optimizada (figuras de “Después”) permite un mayor aprovechamiento de la luz solar en ambos casos estacionales, respecto al edificio original. Esto se debe, especialmente, a la incorporación de nuevos vanos y atrios que canalizan la luz hacia el interior



Después:





Figura 19. Imagen a la izquierda corresponde al Corte en Solsticio de Invierno, Imagen de la derecha corresponde al Corte en Solsticio de Verano.

Nota. De elaboración propia, a partir del uso del software Revit 2023 y Photoshop CC2023.




Figura 20. Imagen a la izquierda corresponde al Zoom del Corte en Solsticio de Invierno, Imagen de la derecha corresponde al Zoom Corte en Solsticio de Verano.

Nota. De elaboración propia, a partir del uso del software Revit 2023 y Photoshop CC2023.



Finalmente, las Figuras 21 y 22 ofrecen una apreciación cualitativa de los cambios arquitectónicos y ambientales logrados. Las imágenes comparativas del estado original (antes) versus la propuesta (después) ilustran cómo las estrategias pasivas implementadas —como la inclusión de ventanas adicionales orientadas al sur, patios de luz y elementos de sombreado— transforman el comportamiento del edificio. Se aprecia una volumetría adaptada al clima: en las vistas “después”, se observan interiores mucho más iluminados naturalmente y una reducción de contrastes excesivos de luz y sombra, lo que valida visualmente la eficacia de las soluciones de diseño pasivo adoptadas. Estas representaciones gráficas complementan los resultados cuantitativos, lo que confirma, de manera clara y directa, la mejora en el desempeño térmico y lumínico de la edificación tras la aplicación de las estrategias bioclimáticas propuestas.




Figura 21. Renders propuesta inicial (antes) y optimizada (después)

Nota. De elaboración propia, a partir del uso del software SketchUp 2023 y D5.




Figura 22. Renders propuesta inicial (antes) y optimizada (después)

Nota. De elaboración propia, a partir del uso del software SketchUp 2023 y D5.



4. Discusión de los resultados obtenidos


El estudio de caso se desarrolla en Madrid, ciudad con un clima mediterráneo continental marcado por veranos muy calurosos e inviernos fríos. La investigación recopiló datos climáticos locales (temperaturas extremas, vientos dominantes y trayectoria solar) y empleó simulaciones digitales (Climate Consultant, Ladybug e Insight de Revit) para proyectar un edificio que aproveche estrategias pasivas y minimice la demanda energética. Estos desafíos climáticos exigen una respuesta arquitectónica adaptativa basada en el diseño pasivo.

La literatura bioclimática destaca, por ejemplo, la importancia de optimizar la orientación para captar la radiación solar invernal y limitarla en verano, utilizar masa térmica junto con aislamientos para amortiguar las oscilaciones térmicas, ubicar estratégicamente las aberturas para la ventilación natural y proveer sombreamientos eficaces (Elaouzy y El Fadar, 2022). En este caso, la radiación solar intensa y los vientos del suroeste condicionan el confort estival, mientras que, en invierno, la menor insolación y la isla de calor urbana aumentan la necesidad de ganancias solares pasivas. Por tanto, las estrategias pasivas seleccionadas –control solar, captación solar invernal, ventilación cruzada y aislamiento– resultan especialmente pertinentes para el clima extremo de Madrid, al alinearse con los principios de diseño pasivo recomendados para optimizar el confort térmico y lumínico a lo largo del año.


Desempeño lumínico: Los resultados evidencian mejoras sustanciales en la iluminación natural tras las intervenciones pasivas. Antes de las modificaciones, solo el 11% de los espacios de la primera planta tipo alcanzaban el nivel umbral de iluminancia recomendado; luego de implementar ventanas orientadas al sur, patios de luz internos y protecciones solares, este valor subió al 35%. De forma análoga, en la segunda planta, el porcentaje aumentó del 13% al 55%, y en la tercera planta del 16% al 36%. Si se consideran los espacios que superan el umbral recomendado, las mejoras relativas fueron aún mayores, pues se pasó de 62% a 69% en la planta 1, de 62% a 74% en la planta 2 y de 48% a 73% en la planta 3. Adicionalmente, el Average Daylight Factor (ADF, factor medio de luz diurna) se incrementó desde un rango inicial de 7,5–9,1% hasta un máximo de 11,7%. Estos indicadores confirman que una configuración volumétrica con amplias superficies acristaladas y patios interiores distribuye mejor la luz natural, lo que reduce la dependencia de iluminación artificial. Este hallazgo concuerda con estudios internacionales recientes: Al-Mowallad et al. (2024) demostraron que ajustar la relación entre la superficie acristalada y el piso y optimizar el tipo de ventana e incorporar dispositivos de sombreado mejoran la uniformidad de la luz y disminuyen el deslumbramiento en aulas con doble fachada. En otras palabras, el control adecuado de las aperturas y sombras potencia la calidad lumínica interior, lo que respalda los resultados obtenidos en Madrid.


Confort térmico y ventilación natural: La propuesta arquitectónica se orientó deliberadamente para maximizar la ventilación cruzada natural. Las simulaciones ambientales confirmaron un régimen de brisas predominantes del suroeste, durante el día, y del noreste, por la noche. Este patrón fue aprovechado al incorporar patios centrales, a modo de chimeneas de ventilación y aberturas enfrentadas en fachadas opuestas. Esta estrategia facilitó la expulsión del aire caliente y la entrada de aire fresco de forma pasiva, especialmente durante las noches estivales. Paralelamente, se dimensionaron cuidadosamente voladizos y elementos de sombreado, para reducir la ganancia térmica en verano, sin comprometer la captación solar en invierno.

De este modo, el edificio disminuye el sobrecalentamiento estival, a la vez que aprovecha la radiación invernal para calentamiento pasivo, lo que mejora el confort térmico anual. La eficacia de estas soluciones está respaldada por estudios previos: Myroniuk et al. (2024) comprobaron que un muro Trombe optimizado puede generar un flujo de ventilación natural de hasta ~120 m³/h, mediante convección inducida. Si bien el caso de Madrid no incluye un muro Trombe, aplica el mismo principio de ventilación por efecto chimenea a través de sus patios, lo que logra mejorar la circulación de aire interior sin recurrir a sistemas mecánicos.

Adicionalmente, revisiones internacionales resaltan que la combinación de múltiples medidas pasivas tiende a maximizar la eficiencia energética global de la edificación. Por ejemplo, Taherian y Peters (2023) clasifican las soluciones en activas (equipos mecánicos) y pasivas (ventilación natural, chimeneas solares, techos verdes, etc.), lo que subraya que la implementación conjunta de diversas estrategias pasivas genera sinergias que optimizan el desempeño energético. En esta línea, un extenso análisis de Elaouzy y El Fadar (2022) encontró que la mayoría de las técnicas pasivas bien diseñadas reducen sustancialmente la demanda de energía y las emisiones asociadas, y que la integración de varias técnicas pasivas puede lograr ahorros de energía desde un ~7% hasta un 66%, según el contexto. El enfoque del presente proyecto –que integra orientación solar, sombreado, aislamiento y ventilación cruzada– ejemplifica esta sinergia, coherente con lo reportado en la literatura sobre eficiencia energética pasiva.


Comparación con otras investigaciones: Aunque el clima de Madrid impone soluciones específicas distintas a las de otras regiones, los principios fundamentales del diseño pasivo son ampliamente aplicables. Estudios en climas mediterráneos tradicionales muestran que las edificaciones vernáculas, con muros masivos y sombreamientos integrados requieren mucha menos energía para climatización que las construcciones contemporáneas. En efecto, una investigación en Chipre halló que las casas mediterráneas tradicionales –dotadas de gruesos muros de alta inercia térmica y protecciones solares incorporadas– consumían significativamente menos energía que las viviendas modernas. Al aplicar estrategias pasivas de diseño en estas últimas, se podía reducir el consumo energético hasta en ~35% (Bekele y Atakara, 2023).

Esto refuerza la premisa de que adaptar las soluciones pasivas al contexto local brinda beneficios sustanciales en confort y ahorro de energía. Asimismo, la integración de herramientas avanzadas de simulación en el proceso de diseño, como se hizo en este estudio, coincide con la tendencia internacional de proyectar edificaciones sostenibles basadas en datos. La utilización de software como Ladybug o Revit Insight permitió evaluar objetivamente múltiples alternativas de diseño y optimizar la configuración final, algo crucial para validar las decisiones pasivas antes de la construcción. Diversos autores resaltan la importancia de incorporar estas estrategias desde las etapas conceptuales: Simbaña et al. (2024), por ejemplo, concluye que incluir criterios pasivos desde el inicio del proyecto conlleva beneficios energéticos, económicos y medioambientales a largo plazo, lo que respalda su adopción temprana en el diseño arquitectónico. En síntesis, los resultados obtenidos en Madrid se muestran coherentes con la literatura científica existente, lo que demuestra que la aplicación integrada de estrategias de diseño pasivo –debidamente informada por datos climáticos y simulaciones– es una vía efectiva para mejorar el confort interior y la eficiencia energética, especialmente en climas con altas variaciones estacionales, como el de Madrid.



5. Conclusiones


La investigación realizada demuestra que la integración temprana de estrategias de diseño pasivo desde la fase conceptual mejora, de forma notable, el confort térmico y lumínico en edificaciones con el clima mediterráneo continental de Madrid. Gracias a un diseño bioclimático adaptado a las condiciones locales, se lograron espacios interiores más estables y confortables, lo que minimizó la necesidad de recurrir a sistemas mecánicos de climatización.

En términos de iluminación natural, los indicadores obtenidos evidencian mejoras significativas. Tras la implementación de las soluciones pasivas propuestas, la proporción de áreas que superan el nivel de iluminación diurna recomendado aumentó hasta un 74% en las plantas típicas del edificio, y el factor de luz diurna (ADF) alcanzó valores de hasta un 11,7%. Este mayor aprovechamiento de la luz natural se traduce en una menor dependencia de la iluminación artificial durante el día, lo cual potencia la eficiencia energética y mejora las condiciones de confort visual para los ocupantes.

En cuanto al comportamiento térmico, las estrategias adoptadas –como la incorporación de voladizos y elementos de protección solar, sumadas a una ventilación cruzada eficiente– redujeron notablemente las ganancias de calor excesivas durante el verano, a la vez que facilitaron la captación de radiación solar en invierno. Las simulaciones demostraron que una correcta orientación del edificio, junto con patios y aberturas estratégicamente ubicados, permite aprovechar los vientos dominantes de Madrid (suroeste diurno y noreste nocturno) para refrescar los espacios interiores de forma pasiva. Estas medidas bioclimáticas permitieron mantener temperaturas interiores más estables y disminuir la necesidad de climatización activa.

La efectividad de estas soluciones concuerda con hallazgos de estudios previos: Myroniuk et al. (2024) demostraron que un elemento pasivo bien diseñado (en su caso, un muro Trombe) puede inducir flujos de aire significativos mediante convección natural. Asimismo, revisiones internacionales subrayan la eficacia de combinar múltiples estrategias pasivas –por ejemplo, cubiertas vegetadas, chimeneas solares y ventilación natural– e incluso integrarlas con sistemas activos para optimizar el desempeño energético global del edificio (Taherian y Peters, 2023).

La metodología empleada en este estudio constituye otro aporte relevante. El uso integrado de herramientas de simulación ambiental desde las etapas iniciales de diseño —como Climate Consultant, Rhinoceros/Ladybug y Revit Insight— facilitó la toma de decisiones informadas basadas en datos climáticos concretos. Esta aproximación permitió comparar alternativas de manera objetiva y optimizar el desempeño térmico-lumínico del edificio antes de su materialización. De este modo, se confirmó que la incorporación temprana de simulaciones digitales no solo agiliza el proceso proyectual, sino que produce soluciones replicables con ajustes mínimos en contextos climáticos diversos. En última instancia, los edificios diseñados con estos criterios resultan más confortables, resilientes y sostenibles, lo que contribuye a los objetivos de eficiencia energética y a la reducción de emisiones en entornos urbanos.

A la luz de los resultados, queda de manifiesto la relevancia de las estrategias pasivas evaluadas para el contexto climático de Madrid. En una ciudad con veranos muy calurosos e inviernos fríos, las soluciones implementadas —control solar estacional, ventilación natural cruzada y optimización de la volumetría y la orientación— demostraron ser altamente efectivas para mantener el confort interior, al reducir al mínimo el apoyo de sistemas activos. La aplicabilidad potencial de estas estrategias se extiende más allá de este caso de estudio: los principios de diseño bioclimático empleados pueden adaptarse a edificaciones en climas similares, al aprovechar las condiciones locales para lograr eficiencia energética y habitabilidad mejorada. Incluso en contextos climáticos distintos, la metodología seguida —basada en análisis climático detallado y simulación iterativa— sirve como guía transferible para integrar medidas pasivas adecuadas a cada entorno.

Pese a los avances logrados, conviene plantear algunas recomendaciones para investigaciones futuras. En primer lugar, sería valioso realizar evaluaciones cuantitativas más detalladas del desempeño energético y del confort obtenido, ya sea mediante simulaciones adicionales de consumo energético anual o a través de monitoreo in situ en edificaciones construidas, con el fin de contrastar y validar los ahorros y mejoras proyectados por este estudio. Asimismo, se sugiere extender la metodología de diseño pasivo empleada a otros contextos climáticos (por ejemplo, regiones de clima húmedo, tropical o de latitudes diferentes), lo que permitiría verificar la adaptabilidad de las estrategias propuestas y derivar pautas específicas para cada entorno.

La integración de nuevas tecnologías pasivas emergentes constituye otra línea de investigación de interés. Tecnologías como materiales de cambio de fase en la envolvente, vidrios inteligentes termocrómicos o sistemas pasivos de enfriamiento evaporativo podrían incorporarse para complementar las soluciones tradicionales y potenciar aún más el desempeño ambiental sin requerir consumo energético adicional. Por último, serían de gran utilidad estudios comparativos sistemáticos entre distintas estrategias pasivas, al evaluar su eficacia de forma aislada y en sinergia, con el fin de identificar qué combinaciones generan los mayores beneficios en términos de confort interior y eficiencia energética. Abordar estas iniciativas contribuiría a profundizar el conocimiento sobre el diseño pasivo y a guiar su aplicación óptima en la arquitectura sostenible.


Declaración de conflicto de intereses: Los autores declaran no tener conflictos de interés.

Declaración de contribución de los autores: A continuación, se menciona las contribuciones de los autores, en correspondencia con su participación, mediante la Taxonomía Crédit:



6. Referencias


Al-Mowallad, E. A. M. S., Huang, X., Lu, Z., Li, X., Wu, K., Zhu, Z., y Liu, G. (2024). Assessment and improvement of daylighting quality in classrooms with double-side windows. Buildings, 14(11), 3501. https://doi.org/10.3390/buildings14113501

Bekele, M. T., y Atakara, C. (2023). Residential Building Energy Conservation in Mediterranean Climate Zone by Integrating Passive Solar and Energy Efficiency Design Strategies. Buildings13(4), 1073. https://doi.org/10.3390/buildings13041073

Bilbao, A., de Miguel, A., Pérez-Burgos, A., y Román, R. (2008). Energías renovables y su integración en la edificación.

https://www.researchgate.net/publication/258450471_Energias_Renovables_y_su_Integracion_en_la_Edificacion

Carmenado Vaquero, L. (2016). Estímulos y reacciones: fachadas dinámicas ante el sol, el viento y la temperatura. Universidad Politécnica de Madrid. https://oa.upm.es/39236/1/TFG_Loreto_Carmenado_Vaquero.pdf

Cillari, G., Ferraro, M., Griffo, A., y Margani, G. (2021). Passive solar solutions for buildings: Criteria and synergies. Applied Sciences, 11(1), 376.

DrajMarsh, A. (2025). Sun Path Diagram 2D Madrid. DrajMarsh. https://drajmarsh.bitbucket.io/sunpath2d.html

Erell, E., Pearlmutter, D., & Williamson, T. (2012). Urban microclimate: Designing the spaces between buildings. Routledge. https://doi.org/10.4324/9781849775392

Elaouzy, Y., y El Fadar, A. (2022). Energy, economic and environmental benefits of integrating passive design strategies into buildings: A review. Renewable and Sustainable Energy Reviews, 167, 112828. https://doi.org/10.1016/j.rser.2022.112828

Fernández García, F., y Rasilla Álvarez, D, (2008). Olas de calor e influencia urbana en Madrid y su área metropolitana. Investigaciones Geográficas. https://www.researchgate.net/publication/251065729_Olas_de_calor_e_influencia_urbana_en_Madrid_y_su_area_metropolitana

Higueras, E. (1998). Urbanismo Bioclimático, Criterios medioambientales en la ordenación de asentamientos. Cuadernos de Investigación Urbanística, 1-81. https://es.scribd.com/document/474481268/Urbanismo-bioclimatico-Esther-Higueras#page=36

Lopez-Astudillo, K. S., Simbaña-Escobar, P. R., y Chérrez-Córdova, E. A. (2025). Optimización basada en datos del desempeño lumínico y térmico de una vivienda multifamiliar. Estudio de caso en Santa Elena, Ecuador. MQRInvestigar , 9(3), e914. https://doi.org/10.56048/MQR20225.9.3.2025.e914

Madrid climate, weather by month, Average temperature (Spain) - weather spark. (12 de noviembre de 2025). Weather Spark. https://weatherspark.com/y/36848/Average-Weather-in-Madrid-Spain-Year-Round#google_vignette

Milne, M., Liggett, R., Benson, A., & Bhattacharya, Y. (mayo de 2009). Climate Consultant 4.0 develops design guidelines for each unique climate. En American Solar Energy Society Meeting.

Myroniuk, K., Furdas, Y., Zhelykh, V., Adamski, M., Gumen, O., Savin, V., y Mitoulis, S.-A. (2024). Passive Ventilation of Residential Buildings Using the Trombe Wall. Buildings14(10), 3154. https://doi.org/10.3390/buildings14103154

Rasilla, D., Allende, F., y Fernández García, F. (2016). La isla de calor urbano de Madrid durante la ola de calor de julio 2015. Repositorio de la Universidad de Cantabria. https://repositorio.aemet.es/bitstream/20.500.11765/8013/1/0047_X-2016-RASILLA.pdf

Roudsari, M. S., Pak, M. y Smith, A. (2013). Ladybug: a parametric environmental plugin for grasshopper to help designers create an environmentally-conscious design. En Building Simulation 2013 (Vol. 13, pp. 3128-3135). IBPSA.

Santamouris, M., Sfakianaki, A., y Pavlou, K. (2010). On the efficiency of night ventilation techniques applied to residential buildings. Energy and Buildings, 42(8), 1309-1313.

Simbaña, P., Paredes, D., Jácome, D., & Piña, O. (2020). The urban impact of sustainable design interventions in Quito: Case study of the implementation of the eco-efficient tool in ‘la carolina’neighborhood in Quito. En XII Seminario Internacional de Investigación en Urbanismo, São Paulo-Lisboa, 2020. Faculdade de Arquitetura da Universidade de Lisboa.

Simbaña Escobar, P., Rocchio, D., Alvarado, N. y Cherrez, K. (2024). Passive Strategies for thermal comfort in Amazonian Cities: The Case of Tena’s Waterfront. Bitácora Urbano Territorial, 34(3), 55–70. https://doi.org/10.15446/bitacora.v34n3.115029

Simbaña Escobar, P., Mena-Hernández, S., Córdova, E. C., y Alvarado-Arias, N. (2025). Comparative Thermal Performance and Return on Investment of Glazing Configurations in Building Envelopes: The Case of the Plataforma Gubernamental Norte in Quito, Ecuador. Buildings 2025, 15(19), 3522. https://doi.org/10.3390/BUILDINGS15193522

Syed Wali Uddin, K. M. I., Ubaidurrahman, M. K. M., Mohiuddin, O. H., y Nauman Khan, R. (2025). Design of sustainable and energy efficient building: Energy analysis using Revit Insight. International Journal for Research in Applied Science & Engineering Technology, 13(5), 2547-2555. https://www.ijraset.com/best-journal/design-of-sustainable-and-energy-efficient-building

Taherian, H., y Peters, R. W. (2023). Advanced active and passive methods in residential energy efficiency. Energies, 16(9), 3905. https://doi.org/10.3390/en16093905

Teitelbaum, E., Miller, C., & Meggers, F. (2023). Highway to the Comfort Zone: History of the Psychrometric Chart. Buildings, 13(3), 797. https://doi.org/10.3390/buildings13030797

Toroxel, J. L., Monteiro Silva, S., y Fernandes, J. (2024). Contribution of glazed balconies as a passive heating system in contemporary buildings in northern Portugal. Sustainability, 16(13), 5658. https://doi.org/10.3390/su16135658