Arquitectura Humanitaria y Flexible para la

Resiliencia Comunitaria ante Desastres Socio-naturales:

Caso Cuenca - Ecuador


Adaptive Humanitarian Architecture for

Community Resilience to Socio-natural Disasters: A Case

Study of Cuenca, Ecuador






María Antonia Gil Calderón

Investigadora independiente, Ecuador


antogil99@gmail.com

0009-0002-4383-848




Paula Vanessa Ormaza Saquicela

Investigadora independiente, Ecuador


pvormaza@gmail.com

0009-0009-6093-9718




Diego Javier Proaño Escandón

Universidad del Azuay, Ecuador


dproesa@uazuay.edu.ec

0000-0003-3527-7766




Recibido: 07/08/2025

Aceptado: 17/11/2025















Resumen


Este artículo de investigación original aborda la creciente problemática de los desastres socio-naturales y su vínculo con la vulnerabilidad social, al tomar como referencia el caso de Cuenca, Ecuador, donde el crecimiento urbano desordenado incrementa los riesgos para la población. El objetivo principal es proponer estrategias y lineamientos para el diseño óptimo de albergues multifuncionales y flexibles que brinden apoyo y acogida a las víctimas de emergencias, al tiempo que contribuyan al desarrollo económico, social y cultural de la comunidad en contextos de no emergencia. El estudio analiza las respuestas actuales improvisadas en la ciudad, las cuales resultan en condiciones de habitabilidad efímeras que afectan el bienestar de los damnificados. La metodología combina una revisión exhaustiva de literatura sobre desastres, albergues, y arquitectura flexible y humanitaria, con el análisis de casos de estudio locales (el Centro del Adulto Mayor Yanuncay y la Casa Comunal El Carmen de Guzho) e internacionales relevantes. Los resultados proponen cuatro estrategias clave: (1) planificación y diseño integral de albergues permanentes, (2) polifuncionalidad e integración de necesidades locales, (3) aplicación de principios de arquitectura humanitaria, y (4) diseño flexible y adaptable. Las conclusiones indican que la aplicación teórica de estas estrategias en Cuenca, específicamente en Bellavista y Sinincay, evidencia cómo la arquitectura humanitaria y flexible puede mitigar las consecuencias de los desastres y fomentar la resiliencia comunitaria. Así, se plantean espacios productivos y adaptables que responden tanto a situaciones de emergencia como a necesidades cotidianas, y que pueden ser replicados en otros contextos vulnerables.


Palabras clave: Arquitectura humanitaria, arquitectura flexible, albergue multifuncional, desastre socio-natural, resiliencia comunitaria.






Abstract


This original research article addresses the growing problem of socio-natural disasters and their link to social vulnerability, taking as a reference the case of Cuenca, Ecuador, where unplanned urban growth increases risks for the population. The main objective of the research is to propose strategies and guidelines for the optimal design of multifunctional and flexible shelters that provide support and accommodation to victims of emergencies, while also contributing to the economic, social, and cultural development of the community in non-emergency contexts. The study analyzes the current improvised responses in the city, which result in temporary living conditions that affect the well-being of those affected. The methodology combines an exhaustive literature review on disasters, shelters, and flexible and humanitarian architecture with the analysis of relevant local case studies (the Centro del Adulto Mayor Yanuncay and the Casa Comunal El Carmen de Guzho) and international cases. The results propose four key strategies: (1) comprehensive planning and design of permanent shelters, (2) multifunctionality and integration of local needs, (3) application of humanitarian architecture principles, and (4) flexible and adaptable design. The conclusions indicate that the theoretical application of these strategies in Cuenca, specifically in Bellavista and Sinincay, demonstrates how humanitarian and flexible architecture can mitigate the consequences of disasters and foster community resilience. Thus, productive and adaptable spaces are proposed that respond to both emergency situations and daily needs and can be replicated in other vulnerable contexts.


Keywords: Humanitarian architecture, flexible architecture, multifunctional shelter, socio - natural disaster, community resilience.




1. Introducción


Este apartado aborda los desastres socio-naturales y su vínculo con la vulnerabilidad social, al tomar como referencia el caso de Cuenca, Ecuador. Se analizan los riesgos asociados al crecimiento urbano desordenado y se revisan las respuestas actuales, donde se destaca la necesidad de soluciones arquitectónicas más flexibles y adaptadas a las características de cada comunidad.

El texto se estructura conforme al modelo IMRyD, distribuido en cuatro apartados principales. En el primero, se introduce el contexto de los desastres socio-naturales y su relación con la vulnerabilidad en Cuenca, donde el crecimiento urbano descontrolado, sumado a la falta de planificación, incrementa los riesgos para la población afectada. El segundo apartado describe la metodología, basada en el análisis de conceptos de arquitectura humanitaria y flexible, al considerar factores bioclimáticos, sociales y funcionales, así como el estudio de casos locales e internacionales significativos.

En el tercer apartado se presentan los resultados, expresados como estrategias y pautas de diseño para albergues sostenibles y adaptables, al integrar soluciones constructivas y la incorporación de actividades productivas comunitarias. Finalmente, en el cuarto apartado se discuten las implicaciones de estas propuestas en el contexto local, a través del desarrollo de un proyecto teórico-conceptual que, hasta el momento, no ha sido materializado. Asimismo, se subraya la importancia de la planificación urbana preventiva y de la resiliencia comunitaria para lograr una adecuada recuperación de las comunidades afectadas.

En contraste con estudios previos, este se centra en el cantón Cuenca, inserto en el contexto andino del Ecuador, donde las condiciones geográficas y sociales incrementan la vulnerabilidad frente a deslizamientos y otros desastres socio-naturales. En este escenario, el albergue se concibe como un equipamiento permanente y multifuncional que, además de brindar refugio en situaciones de emergencia, se integra al desarrollo social y productivo de la comunidad, al ofrecer una alternativa duradera frente a los modelos temporales tradicionales.



Contexto global y local de desastres socio-naturales


El término desastre natural, definido por Cardona (1993, como se citó en Aversa et al., 2020), hace referencia a un evento que impacta repentinamente a una comunidad, lo que genera consecuencias graves como la pérdida de vidas humanas e infraestructura, afectaciones a la salud y daños al medio ambiente. Autores como Lavell (2001) señalan que este tipo de sucesos no sólo ponen en evidencia los riesgos existentes, sino también la vulnerabilidad estructural de las comunidades, ya que desencadena múltiples consecuencias de pérdida y daño (Aversa et al., 2020).

Entre los principales impactos sociales de estos eventos, se encuentran la alteración de la vida cotidiana, la generación de adversidades y el sufrimiento físico y psicológico de la población. Asimismo, los desastres afectan la estructura socioeconómica de los países, comprometen la infraestructura y deterioran, de forma temporal o permanente, el medio ambiente (Aversa et al., 2020). No obstante, los daños no dependen exclusivamente de la magnitud de la amenaza natural, sino que están directamente relacionados con las condiciones sociales de las comunidades y la ausencia de planificación (Campos et al., 2015). Según estos autores, las consecuencias tienden a agravarse cuando existen limitaciones económicas y los asentamientos se desarrollan en entornos deteriorados.

Al considerar el concepto de desastre desde una perspectiva social, se utiliza el término desastre socio-natural, definido por Blaikie et al. (1996) como un evento amenazante generado por factores naturales, pero intensamente condicionado por la acción humana. Las consecuencias de estos eventos se manifiestan en dimensiones sociales, económicas y de infraestructura (Campos et al., 2015). En este sentido, la sociedad se convierte en un factor determinante de las amenazas asociadas a los desastres; ello permite evaluar el nivel de vulnerabilidad de las comunidades afectadas (Camargo et al., 2020).

Herzer y Di Virgilio (1996) afirman que los daños provocados por un desastre dependen fundamentalmente de la vulnerabilidad social preexistente, más que de la magnitud del fenómeno natural (Aversa et al., 2020). En esta línea, Wilhjman y Timberlake (1984) sostienen que la vulnerabilidad de una sociedad aumenta cuando se presentan condiciones de pobreza, desigualdad y deterioro, lo cual define su grado de exposición al peligro (Campos et al., 2015). Lavell (2001) añade que el nivel de vulnerabilidad también determina el tiempo necesario para la recuperación tras un desastre (Aversa et al., 2020).

Por ello, como plantea Jiménez (2017), resulta indispensable una mitigación preventiva basada en el análisis del riesgo, el cual debe considerar tanto la probabilidad de ocurrencia de un evento (la amenaza) como la vulnerabilidad, entendida como la susceptibilidad al daño a la que se expone una comunidad.

Desde una perspectiva local, Ecuador presenta una alta vulnerabilidad frente a los desastres socio-naturales, debido a su situación económica (Camargo et al., 2020). Esta vulnerabilidad se ve agravada por la falta de planes de ordenamiento territorial, que han favorecido el crecimiento urbano desordenado y la proliferación de asentamientos informales en zonas de riesgo. Adicionalmente, el déficit de políticas públicas e infraestructura especializada limita la capacidad de prevención y mitigación de daños (Jiménez, 2017).

En el caso específico del cantón Cuenca, se evidencia un alto grado de riesgo frente a amenazas como inundaciones, deslizamientos, movimientos sísmicos e incendios forestales. De entre estas amenazas, los deslizamientos son los más frecuentes y preocupantes (GAD Cuenca, 2022). Se definen como cualquier movimiento de masas, caída de rocas o derrumbes de tipo macro (GAD Cuenca, 2022), y pueden tener causas tanto naturales como antrópicas. Entre ellas, están la deforestación, obstrucción de quebradas, construcciones en pendientes, apertura de vías y movimientos de tierra (PDOT, 2015).

Según Pacurucu et al. (2018), estos eventos pueden generar pérdidas humanas y materiales, así como interrupciones en el transporte y las comunicaciones. La ocurrencia de estos desastres se ve potenciada por amenazas sociales, como la existencia de asentamientos informales en zonas rurales de alto riesgo, donde predominan construcciones irregulares y sin permisos (GAD Cuenca, 2022). El diagnóstico del PDOT (2022) identifica como zonas especialmente expuestas a las parroquias rurales de Sinincay, Paccha, Llacao, Nulti, Ricaurte, Sayausí y Sidcay, así como a la parroquia urbana de Bellavista (GAD Cuenca, 2022).

Entre 2012 y 2022, Cuenca ha registrado 25 eventos relacionados con inundaciones o deslizamientos, cuyas consecuencias han afectado significativamente los aspectos económicos, sociales y de infraestructura de cientos de familias (SNGR, 2022). El GAD Cuenca (2022) estima que aproximadamente el 34 % del suelo del cantón presenta incompatibilidades de uso, lo que, junto con la expansión urbana descontrolada, incrementa la frecuencia de desastres socio-naturales y subraya la necesidad urgente de estrategias de gestión y control.



Estrategias de respuesta ante desastres naturales y socionaturales en contextos locales


Tras el impacto de un desastre, suele optarse por el uso inmediato del espacio público para brindar refugio a las personas afectadas, especialmente durante las etapas de emergencia y recuperación. Esta práctica genera condiciones de habitabilidad efímera. Esta, según Montejano y Moreno (2020), se trata de una forma transitoria de habitar que surge en espacios originalmente no destinados como vivienda, cuando estos se adaptan de manera improvisada para responder a una situación de emergencia. Se trata de una condición circunstancial que, a diferencia de condiciones de habitabilidad temporales, no busca consolidarse ni prolongarse en el tiempo, sino que constituye una respuesta inmediata y adaptable ante las circunstancias, limitada por la falta de infraestructuras y de condiciones adecuadas para garantizar una calidad de vida adecuada para los habitantes temporales (ver Figura 1). En este sentido, los autores señalan que el espacio público no debe considerarse un espacio habitable en sí mismo, sino un espacio de transición dentro de la ciudad, destinado a atender una necesidad coyuntural más que a reemplazar la vivienda.

En el caso del cantón Cuenca, el uso del espacio público no constituye una estrategia viable, ya que este tipo de intervención requiere programas minuciosos y de alto presupuesto, además de una continuidad institucional que actualmente no existe para dar seguimiento a dicha gestión.




Figura 1. Albergue temporal utilizado después del terreno de 2016 en Ecuador

Nota. Tomado de EFE (2017).



En Ecuador, los gobiernos provinciales y municipales suelen responder a estas situaciones mediante la habilitación de refugios temporales en escuelas, coliseos, iglesias o casas parroquiales (ver Figura 2). Estas medidas buscan optimizar recursos y mejorar la coordinación en emergencias. Sin embargo, estos espacios no están diseñados para este fin, por lo que su uso interrumpe sus funciones habituales y no garantiza condiciones adecuadas de habitabilidad ni de recuperación para las personas damnificadas.

Cuando estas instituciones son utilizadas como albergues, se generan consecuencias tanto a nivel social como físico. Por ejemplo, se interrumpe el proceso educativo de los niños que asisten a las escuelas habilitadas como refugios, lo cual puede derivar en abandono escolar y un aumento del trabajo infantil (INEE y EIRD, 2007). Asimismo, se produce un deterioro de las instalaciones educativas: aulas, laboratorios, mobiliario, equipos y servicios sanitarios se ven afectados.



Figura 2. Escuela convertida en albergue en Pedernales

Nota. Tomado de EFE (2016).



El traslado a albergues improvisados afecta de forma significativa la salud mental, física y social de las personas damnificadas. Este tipo de desarraigo cultural, afectivo y geográfico altera tanto la dimensión individual como la colectiva, e incluso puede llegar a vulnerar derechos humanos fundamentales (Rojas y Sandoval, 2020). Estas soluciones municipales, si bien responden a necesidades básicas como alimentación, abrigo y techo, desatienden aspectos psicosociales fundamentales como la privacidad, la higiene y el acompañamiento emocional (Buitrón et al., 2017).

A pesar de que se han propuesto modelos orientados a mejorar estas condiciones, la mayoría se centran en una arquitectura emergente o efímera (Figura 1), sin considerar una relación programática circunstancial capaz de adaptarse a las distintas etapas del evento adverso ni a las necesidades cambiantes de las víctimas. Como consecuencia, las personas damnificadas no solo enfrentan la pérdida de su entorno habitual, sino también el impacto del desplazamiento forzado y la incertidumbre asociada al traslado hacia refugios temporales.

La investigación de Rojas y Sandoval (2020) sobre los efectos del desplazamiento por inundaciones demuestra que las condiciones en los albergues pueden agravar trastornos mentales. El estudio identifica, como consecuencias frecuentes, a la pérdida de identidad y pertenencia, dificultades en las relaciones interpersonales y limitaciones para afrontar los problemas cotidianos. Además, se comparó la prevalencia del Trastorno de Estrés Agudo (TEA) entre distintos grupos de afectados, al evidenciar mayores niveles de estrés en quienes sufrieron pérdidas significativas y debieron ser reubicados en refugios temporales.

Ante esta problemática, la arquitectura humanitaria se plantea como una respuesta eficaz. Según Charlesworth (2014), se trata de una arquitectura flexible que trabaja de forma colaborativa con la comunidad y considera su recuperación a largo plazo. Esta perspectiva prioriza la dimensión humana, al fortalecer los recursos y capacidades locales con el objetivo de promover el bienestar y la resiliencia.

Complementariamente, la arquitectura flexible y adaptable permite ajustar el diseño a distintas necesidades y circunstancias. Mediante una planificación adecuada de materiales, estructura, divisiones internas, instalaciones y mobiliario, se generan nuevas posibilidades constructivas y programáticas. De este modo, se potencia la eficacia de la respuesta humanitaria y se brinda un soporte arquitectónico más integral frente a las emergencias.



Objetivo del artículo


La presente investigación tiene como objetivo proponer estrategias y lineamientos para el diseño óptimo de un albergue multifuncional y flexible que brinde apoyo y acogida a las personas afectadas por desastres naturales y socionaturales. Estos espacios deben, además, contribuir al desarrollo económico, social y cultural de la comunidad en contextos de no emergencia.

La propuesta se fundamenta en una revisión de literatura sobre desastres naturales y socionaturales, albergues, y arquitectura flexible y adaptativa, complementada con el análisis de casos de albergues emergentes en Cuenca, así como de referentes internacionales y nacionales en Ecuador, con énfasis en los procesos y espacios habitados por personas alojadas en albergues temporales tras un desastre.



2. Metodología


La metodología se basa en el estudio de los conceptos fundamentales de la arquitectura humanitaria y flexible, con énfasis en la habitabilidad de los albergues frente a desastres socio-naturales. Se analizan factores funcionales, bioclimáticos y sociales, así como casos de estudio tanto locales como internacionales, con el objetivo de establecer lineamientos de diseño que propongan soluciones adaptables, sostenibles y contextualizadas para contextos de emergencia.



Revisión de marco teórico


En primer lugar, se aborda la arquitectura humanitaria como una tipología arquitectónica fundamental dentro del estudio, al ser un eje central para comprender las respuestas espaciales frente a situaciones de emergencia. Su objetivo principal es la incorporación de soluciones flexibles orientadas a la participación activa de la comunidad, con el fin de promover procesos de recuperación sostenibles a largo plazo para las poblaciones afectadas. Charlesworth (2014) destaca la importancia de sistemas adaptables que respondan a las necesidades cambiantes de los usuarios, lo cual implica una arquitectura capaz de ajustarse a diferentes contextos y momentos del proceso de reconstrucción.

Este enfoque se complementa con la dimensión humana de la arquitectura, entendida como la forma consciente de interacción con los futuros usuarios. Según Fernández-Llebrez (2013), ello implica desarrollar propuestas que mejoren la vida de los beneficiarios, al reconocer que, en el contexto de los desastres, las personas afectadas constituyen una combinación creciente de complejidades sociales, culturales y económicas.

En este sentido, la arquitectura humanitaria busca potenciar recursos y capacidades locales para favorecer el bienestar de la comunidad, al abordar problemas sociales desde una práctica comprometida del arquitecto, orientada a generar soluciones desde las propias fortalezas del territorio y sus habitantes. Se trata, por tanto, de una arquitectura que reconoce y acompaña la capacidad de una comunidad para sobreponerse a situaciones adversas.

Esta corriente se sustenta en un conjunto de características aplicables que deben considerarse al momento de su implementación. Un ejemplo de ello es la estimulación de la economía local; la arquitectura humanitaria puede generar empleo y dinamizar la economía, al utilizar materiales, tecnologías y procesos propios de la zona. Esta colaboración local permite maximizar los recursos disponibles y empoderar a la comunidad (Dy y Naces, 2016). Así mismo, el diseño participativo entre arquitectos y comunidad es fundamental. Las opiniones, conocimientos y experiencias locales, en combinación con la formación profesional, permiten reconstruir infraestructuras y redes que favorecen la rehabilitación y el retorno a la normalidad de los afectados (Dy y Naces, 2016).

Esta arquitectura debe responder tanto a necesidades físicas básicas como a aspiraciones humanas vinculadas al desarrollo individual y colectivo, como el crecimiento intelectual y emocional (Buitrón et al., 2017). Además, el diseño debe incorporar aspectos culturales que permitan a los usuarios identificarse con los espacios, tanto interiores como exteriores, lo que fomenta el sentido de pertenencia (Nappi y Souza, 2017). Así, se priorizan los factores expresivos y simbólicos.

El enfoque bioclimático de esta tipología debe considerar una adecuada ventilación natural, control solar y aislamiento acústico, además de adaptarse a las condiciones climáticas cambiantes. La preservación de la vegetación se propone como una estrategia integral de diseño (Nappi y Souza, 2017). En cuanto al factor funcional, los espacios deben garantizar conexiones con equipamientos escolares, recreativos, productivos y de servicios básicos, lo que incluye instalaciones sanitarias mínimas, duchas, lavabos y acceso a agua potable (Nappi y Souza, 2017).

Tras abordar los principios de la arquitectura humanitaria como respuesta inmediata ante contextos de emergencia, resulta pertinente incorporar el concepto de arquitectura flexible y adaptable, la cual se define como aquella capaz de ajustarse a las diferentes necesidades o circunstancias humanas, al responder a características como la forma, el tiempo útil, los cambios internos y la movilidad del espacio. Este enfoque permite generar nuevas posibilidades constructivas y programáticas multidisciplinarias y multifuncionales, en sintonía con la constante transformación inherente al ser humano (Bubher, 1979). Según Kronenburg, 2007, (citado en Medina y Castro, 2014), la flexibilidad comprende tres aspectos básicos que incluyen la adaptación a distintas funciones, usuarios o condiciones climáticas; la transformación del diseño, forma o espacio mediante alteraciones en la estructura, fachada o interior; y la interacción del proyecto con las diversas necesidades del usuario, sustentada en aspectos funcionales, estéticos y tecnológicos. A ello se suma la importancia de la materialidad ligera, que incentiva el uso de materiales livianos y flexibles que faciliten la generación de espacios transformables y versátiles (Gelabert y González, 2013b). Entre las ventajas de un diseño flexible y adaptable, destacan la optimización del espacio, la extensión de la vida útil de la edificación, la sustentabilidad ambiental y la reducción de costos (Pinto, 2019). En esta línea, Peñaloza y Curvelo (2011) enfatizan la relevancia de contar con un espacio capaz de “albergar diferentes tipos de actividades, funciones y usuarios, sin obstaculizar el desarrollo de las actividades primarias para las que el espacio ha sido destinado en primera instancia” (p. 117).

A partir del análisis de diversos autores, se identifican las siguientes propiedades claves que debe cumplir la arquitectura flexible y adaptable, como la optimización estructural mediante el empleo de grandes luces y la ubicación estratégica de instalaciones y circulaciones generales (Gelabert y González, 2013a). Habraken (1998) destaca la importancia de separar los aspectos físicos de una edificación, al diferenciar la estructura del relleno o las particiones interiores. Asimismo, se considera la flexibilidad en los cerramientos para controlar iluminación, apertura y ventilación, junto con el uso de cubiertas adaptables que permitan regular condiciones lumínicas, sonoras, espaciales y formales (Franco, 2009).

La comprensión de la arquitectura flexible y adaptable permite avanzar hacia el estudio del albergue y la habitabilidad como componentes esenciales del diseño arquitectónico, donde el usuario y sus condiciones de vida se consolidan como el eje principal de la propuesta espacial.

Según la definición de la Real Academia Española, un albergue es un “establecimiento benéfico donde se aloja provisionalmente a personas necesitadas”. Generalmente, representa una respuesta estatal orientada a recuperar la autonomía de las víctimas de un desastre natural, con el propósito de restablecer, a corto y mediano plazo, su estabilidad social, económica y emocional (Buitrón et al., 2017). Autores como Nappi y Souza (2017) plantean que, en el diseño de un albergue, deben considerarse factores funcionales, expresivos, simbólicos y sociales que garanticen tanto la habitabilidad física como el bienestar emocional de sus ocupantes. El albergue debe contar con áreas comunitarias y de convivencia, así como espacios privados; cada familia requiere un espacio seguro y propio para sus actividades personales. Se recomienda un área mínima de 3,5 m2 por ocupante para garantizar salud, privacidad y dignidad (Nappi y Souza, 2017). Para que los usuarios se identifiquen con el albergue, el diseño debe incorporar características propias de la domesticidad, tales como continuidad y jerarquía espacial, además de propiedades de transformación y adaptabilidad (Nappi y Souza, 2017). Asimismo, resulta esencial fomentar relaciones positivas entre los usuarios mediante espacios amplios y accesibles para la comunidad, junto con áreas apartadas pero conectadas que permitan la convivencia entre miembros de un mismo barrio o familia, al procurar que los dormitorios se ubiquen al final de los ejes de circulación, para garantizar privacidad (Nappi y Souza, 2017).

El concepto de habitabilidad en los albergues se amplía al considerar no solo las necesidades básicas, sino también las instrumentales: identidad, ocio, participación, afecto, entendimiento y libertad. La investigación de Buitrón et al. (2017) destaca la relevancia de generar entornos que promuevan la protección a través de dinámicas de convivencia que no se perciban como limitantes, sino como oportunidades de organización y respeto mutuo; el afecto, al fomentar el cuidado y apoyo dentro de las unidades familiares; y la identidad, mediante estrategias que permitan a las víctimas mantener el orgullo por su cultura, su entorno natural y su historia. De esta forma, el albergue se concibe no sólo como un espacio de refugio temporal, sino como un medio de recuperación integral que contribuye al restablecimiento de la dignidad y la cohesión social de las comunidades afectadas.

De esta forma, el albergue se concibe no sólo como un refugio temporal, sino como un medio de recuperación integral que restituye la dignidad y la cohesión social de las comunidades afectadas. A partir de esta visión, resulta necesario analizar el contexto donde surgen estos espacios, marcado por desastres socio-naturales y asentamientos informales que evidencian la necesidad de soluciones arquitectónicas humanitarias. Como se mencionó anteriormente, Blaikie et al. (1996) definen un desastre socio-natural como aquel influenciado por la acción humana, cuyas consecuencias impactan los ámbitos sociales, económico e infraestructura (Campos et al., 2015). Entre las causas posibles de este tipo de catástrofes, se encuentran los asentamientos informales o asentamientos de hecho. Estos, según la LOOTUGS (2016), corresponden a todo tipo de ocupación que se realiza sin respetar los lineamientos de planificación impuestos por las autoridades. Además, se caracterizan por ubicarse en zonas de riesgo. En el documento generado tras la conferencia Hábitat III, se señala que este tipo de asentamientos es especialmente vulnerable a desastres, debido a su localización geográfica riesgosa y a la calidad precaria de las edificaciones, que no cumplen con las normativas municipales.

En la mayoría de los estudios, estos asentamientos se abordan desde una perspectiva social o económica. Reyes et al. (2022) explican que el nivel de vulnerabilidad de estas comunidades depende de factores socioambientales, tales como el deterioro de los ecosistemas donde se encuentran, la baja calidad de vida de sus habitantes, y la carencia de conocimientos sobre respuestas ante situaciones de emergencia debido a la ausencia de modelos efectivos de gestión de riesgos. Asimismo, estas condiciones traen consecuencias ambientales, como el aumento del consumo de combustibles (Gómez y Cuvi, 2016).

Por lo tanto, cuando la acción humana altera los procesos naturales de un territorio no urbanizable, se genera un desequilibrio en diversos factores, lo que expone a la comunidad a una mayor vulnerabilidad y riesgo frente a desastres naturales (Jaque et al., 2017). Reyes et al. (2022) afirman que la vulnerabilidad de los asentamientos informales frente a una catástrofe está influenciada por la falta de resiliencia individual y colectiva, agravada por el bajo nivel de vida de sus habitantes. Estas comunidades carecen de métodos adecuados de preparación para desastres, debido a la mala calidad de sus viviendas y a la ausencia de infraestructura urbana, equipamiento y espacios públicos. Además, su localización en zonas de peligro incrementa la probabilidad de que la resiliencia sea baja frente a factores de estrés, lo que impide el aprovechamiento óptimo de los recursos del territorio utilizado (Torres et al., 2021).



Análisis del caso de estudio: Cuenca, Ecuador


Según cifras presentadas en el PDOT y por el GAD Cuenca (2022), la ciudad de Cuenca, Ecuador, experimenta desastres de gran magnitud cada uno o dos años. Como consecuencia, aproximadamente el 30% de la población se ve afectada, al igual que cerca del 10% de la infraestructura. La parroquia rural de Sinincay y la parroquia urbana de Bellavista, donde además existen asentamientos informales, son las más vulnerables a desastres originados por “deforestación, expansión de la frontera agrícola, taponamiento de quebradas, construcción sobre rellenos y zonas inundables” (El Mercurio, 2022, párr. 3). Se estima que unas 7 669 personas habitan en áreas identificadas como vulnerables, y alrededor de 22 527 predios presentan niveles altos o muy altos de riesgo a remoción de masas (GAD Cuenca, 2022).

La provincia del Azuay dispone de 27 inmuebles habilitados como posibles albergues temporales, tres de los cuales se encuentran en Cuenca. Sin embargo, estos espacios no cuentan con las condiciones adecuadas en términos de infraestructura, habitabilidad ni apoyo para la recuperación física y mental de los afectados. Las estrategias de gestión y control actuales se basan en intervenciones improvisadas, con escasa evaluación crítica y análisis previo.

En la ciudad, los albergues se activan cuando se presenta una emergencia, generalmente provocada por catástrofes naturales. Para este estudio, se analizaron dos albergues improvisados que se habilitaron tras la inundación provocada por el desbordamiento del río Tarqui en mayo de 2021 (El Mercurio, 2021). Las autoridades municipales atendieron la urgente necesidad de albergar a más de 58 personas que perdieron, total o parcialmente, sus viviendas. Para ello, se organizaron dos instalaciones que se habilitaron en menos de 24 horas, para lo que se emplearon espacios no diseñados originalmente para esta función: el Centro del Adulto Mayor Yanuncay y la Casa Comunal El Carmen de Guzho, gestionados respectivamente por Acción Social Cuenca y autoridades religiosas de la parroquia (ver Figura 3).

A partir de esta situación, el análisis de los casos locales se orienta a evaluar tres dimensiones fundamentales funcional, bioclimática y social— que permiten comprender las limitaciones y oportunidades de los albergues existentes. Los aspectos funcionales se relacionan con la organización espacial, la adecuación de los programas y la adaptabilidad del uso; los bioclimáticos con el confort térmico, la ventilación y el aprovechamiento de materiales locales; y los sociales con la habitabilidad, la seguridad, la percepción de pertenencia y la contención emocional de los usuarios. Este enfoque integral constituye la base metodológica para examinar los dos casos seleccionados en Cuenca.




Figura 3. Ubicación de albergues locales



Centro del adulto mayor Yanuncay - Cuenca, Ecuador


El Centro del Adulto Mayor, cuya función principal es servir como centro de día para actividades destinadas a personas de la tercera edad, fue activado como albergue provisional tras la inundación, lo que implicó la suspensión total de sus actividades regulares. El centro alojó a tres familias, con un total de 30 personas, durante dos meses. Para recopilar información, se realizó una entrevista a una mujer de 45 años que residió en el albergue y actualmente trabaja en el mismo. Además, se aplicó un análisis basado en las pautas del Manual Esfera, con el objetivo de evaluar el desempeño del albergue bajo los términos funcionales, bioclimáticos y sociales mencionados anteriormente.

En cuanto a los aspectos funcionales, la asignación de habitaciones separadas por familia permitió un nivel aceptable de privacidad grupal, pues cada núcleo familiar pudo desarrollar sus actividades de forma independiente. Sin embargo, dentro de las habitaciones no existía un espacio privado para cada miembro. La Figura 4 muestra el funcionamiento del espacio habitual como Centro del Adulto Mayor, mientras que la Figura 5 presenta una recreación visual generada mediante inteligencia artificial que representa la forma en que los damnificados describieron la adaptación del lugar durante la emergencia. Los usuarios contaron con servicios básicos de descanso, higiene y alimentación, lo que incluye camas, inodoros, duchas y alimentos. No obstante, el sentido de pertenencia fue limitado, principalmente por la carencia de mobiliario para almacenamiento.

Ante esta situación, los afectados improvisaron soluciones con cajas y otras superficies, lo que comprometió su autonomía y comodidad. La principal deficiencia en privacidad se relacionó con la falta de duchas diferenciadas por género, lo que generó incomodidad entre los usuarios. Estas limitaciones evidencian la necesidad de una planificación espacial más flexible que contemple divisiones internas adaptables y zonas sanitarias equitativas, lo que permite que el espacio responda a distintos tipos de familias y necesidades. En cuanto a la seguridad, la percepción fue alta, gracias al servicio de guardianía disponible las 24 horas, y a los turnos nocturnos realizados por voluntarios, quienes brindaron apoyo ante cualquier eventualidad. La separación por familias contribuyó a esta sensación de seguridad, al evitar el contacto con personas ajenas al grupo cercano, lo que redujo potenciales conflictos.

Respecto a los aspectos sociales, debido a la naturaleza de las instalaciones, los afectados tuvieron acceso a servicios de apoyo psicológico y médico. Se ofrecieron talleres psicoeducativos y terapias individuales y grupales, fundamentales para el acompañamiento emocional. Diversas instituciones proporcionaron donaciones de alimentos, ropa, útiles escolares y equipos tecnológicos. El acceso a computadoras e internet facilitó la continuidad educativa de niños y jóvenes, especialmente en el contexto de virtualidad impuesto por la pandemia. Esta oferta integral fortaleció el bienestar general durante la estancia, y refleja la dimensión social del espacio, que no solo respondió a necesidades básicas, sino también a las instrumentales vinculadas con la educación, la salud y la contención emocional.

Por restricciones sanitarias derivadas de la pandemia de Covid-19, las actividades grupales fueron limitadas. Sin embargo, esta reducción no afectó significativamente a los usuarios, quienes no manifestaron la necesidad prioritaria de establecer vínculos con otras familias. Los espacios comunes utilizados se limitaron a la cocina y comedor; esta última estuvo organizada para que cada familia dispusiera de su propia mesa y se respetara el distanciamiento físico. Estos espacios cumplieron funciones operativas esenciales, sin fomentar dinámicas comunitarias significativas, lo que evidencia la importancia de diseñar ambientes comunes que integren la convivencia y el sentido de comunidad.

En relación con los aspectos bioclimáticos, las habitaciones ofrecieron confort térmico adecuado, gracias a la correcta implementación de materiales como piso flotante, mampostería enlucida, cielo raso de yeso cartón y carpintería de aluminio. Aunque la iluminación artificial fue suficiente, la ventilación e iluminación natural resultaron limitadas en varias habitaciones, debido a la ausencia de ventanas, pues estos espacios no fueron concebidos originalmente para uso residencial. Estos factores muestran la necesidad de incorporar estrategias pasivas, como ventilación cruzada, control solar y aprovechamiento de la luz natural, que mejoren la eficiencia energética y el confort ambiental en futuras propuestas de albergues.




Figura 4. Uso habitual del Centro del Adulto Mayor






Figura 5. Recreación de la adaptación del espacio mediante inteligencia artificial



Casa comunal El Carmen de Guzho - Cuenca, Ecuador


Esta edificación corresponde al espacio gestionado por la iglesia de la parroquia Carmen de Guzho, donde habitualmente funcionan la casa comunal y el comedor comunitario. Ante la emergencia, este lugar fue habilitado como albergue temporal para tres familias, donde se albergó un total de diez personas en situación de migración. Durante los tres meses en que el albergue permaneció activo, se suspendieron las actividades regulares, tales como la catequesis, las reuniones religiosas y el funcionamiento del comedor comunitario. Para la recolección de información, se realizó una entrevista con el encargado del lugar, un hombre de aproximadamente 60 años. El análisis del albergue se llevó a cabo según las pautas del Manual Esfera, con el fin de examinar la privacidad, seguridad, servicios de apoyo, comunidad y condiciones de habitabilidad bajo el análisis de aspectos funcionales, bioclimáticos y sociales.

Al no contar con apoyo especializado para la gestión del albergue, la situación de privacidad fue deficiente. Todas las familias permanecieron en un mismo espacio de aproximadamente 72 m², lo que generó condiciones de hacinamiento. En el aspecto funcional, los residentes contaron con espacios básicos para el descanso y la alimentación, y algunos equipamientos presentes en el lugar no disponían de mobiliario adecuado, como camas o muebles de almacenamiento, lo cual redujo considerablemente la funcionalidad del espacio y el sentido de apropiación de quienes lo habitaban.

Los espacios destinados a la higiene presentaron una cantidad suficiente de inodoros y lavabos, dado el reducido número de personas alojadas; sin embargo, el establecimiento carecía de duchas, lo que limitaba las condiciones mínimas de habitabilidad y bienestar. La seguridad tampoco fue considerada durante la organización del albergue, pues no se implementaron medidas formales de protección, más allá de la presencia de los encargados del lugar. Esta ausencia de mecanismos estructurados evidenció una organización improvisada y sin criterios técnicos orientados a la protección de los usuarios.

Desde el aspecto social, los residentes no recibieron ningún tipo de atención o acompañamiento psicológico ni de salud. El único apoyo consistió en donaciones de alimentos y ropa, gestionadas por autoridades religiosas de parroquias vecinas. Se evidenció una clara necesidad de empleo para los adultos, así como una falta de apoyo para la continuidad educativa de los niños y niñas alojados. Esta carencia de recursos esenciales profundizó la vulnerabilidad de las familias migrantes, lo que, en algunos casos, las llevó a la decisión de regresar a su país de origen. El albergue carecía de espacios destinados a fomentar la interacción entre sus ocupantes; no obstante, los niños se apropiaron espontáneamente de la plaza exterior para realizar actividades recreativas, a pesar de que esta se encontraba en malas condiciones físicas. Las instalaciones de cocina, concebidas originalmente para el comedor comunitario, fueron adecuadas y constituyeron el único punto de encuentro; sin embargo, los usuarios debían encargarse de preparar sus propios alimentos y carecían de un comedor apropiado para su consumo, lo que limitó la interacción y la cohesión social.

En cuanto a los aspectos bioclimáticos, las condiciones de habitabilidad presentaron limitaciones importantes. Los espacios utilizados como habitaciones no ofrecían confort térmico, ya que estaban construidos con materiales como piso de baldosa, carpintería de acero y tabiques ligeros de madera. Aunque la iluminación fue adecuada, el deficiente aislamiento permitía la entrada constante de corrientes de aire, lo que afectó la calidad del descanso. Si bien los residentes contaron con espacios básicos para el descanso y la alimentación, algunos equipamientos presentes en el lugar no disponían de mobiliario adecuado, como camas o muebles de almacenamiento, lo cual redujo considerablemente la funcionalidad del espacio y el sentido de apropiación de quienes lo habitaban.

Tras este análisis, que abarca los aspectos funcionales, bioclimáticos y sociales, resulta imprescindible plantear estrategias y lineamientos concretos para el diseño de un albergue multifuncional que pueda acoger a familias damnificadas, al proporcionarles espacios habitables con soluciones a corto, mediano y largo plazo. Al considerar las condiciones especiales relacionadas con los usuarios, los tiempos de uso y los requerimientos del programa, se enfatiza la necesidad de implementar dichas estrategias en el diseño de un espacio adaptable y flexible, cuya función principal sea albergar a las familias durante el tiempo necesario, y que además pueda integrarse con un programa alternativo que responda a las necesidades específicas de la zona.

La Figura 6 muestra el aula originalmente destinada a actividades de catequesis, mientras que la Figura 7 presenta una recreación visual generada mediante inteligencia artificial que representa cómo los damnificados describieron la adaptación del espacio durante la emergencia.




Figura 6. Aula de catequesis antes de la emergencia




Figura 7. Recreación de la adaptación del aula como dormitorio mediante inteligencia artificial



Análisis de referentes internacionales


Para complementar el análisis realizado en Cuenca, se incorporaron referentes internacionales que permiten contrastar y enriquecer la comprensión de las estrategias aplicadas para el diseño óptimo de un albergue. La selección de estos proyectos se realizó mediante una metodología comparativa que consideró criterios específicos de pertinencia; entre ellos estaban la escala arquitectónica mediana y pequeña, la similitud de condiciones contextuales con Cuenca, tanto en ámbitos rurales como urbanos, y la función social de los proyectos, orientada a la atención de comunidades vulnerables. Además, se priorizaron ejemplos que integran principios de sostenibilidad, estrategias bioclimáticas y procesos participativos de diseño y construcción, lo que permite establecer paralelos con las necesidades de los albergues locales. Esta selección busca, por tanto, identificar soluciones arquitectónicas replicables y adaptables que aporten criterios funcionales, bioclimáticos y sociales aplicables al contexto ecuatoriano.

En primer lugar, se analizó el Centro de Salud Rugerero, ubicado en el distrito de Rubavu, Ruanda, y diseñado por ASA Architecture, en 2018. En el aspecto funcional, este proyecto organiza el programa en dos volúmenes, uno público o semipúblico, y otro privado, conectados mediante tres patios que jerarquizan los espacios, optimizan la iluminación y facilitan la ventilación natural (ASA, 2021) (ver Figura 8). Además, la comunidad local participó activamente tanto en el diseño como en la construcción, donde se emplearon materiales y técnicas autóctonas y se capacitó a los habitantes para aportar mano de obra, lo que fortaleció el sentido de apropiación y redujo costos. En el aspecto bioclimático, se incorporaron elementos como celosías, tragaluces, aleros y patios interiores para proporcionar sombra, iluminación natural y ventilación cruzada. Asimismo, se implementaron sistemas de recolección de aguas grises en tanques, lo que contribuyó al ahorro energético y al reúso de recursos hídricos. Desde el aspecto social, la participación comunitaria en todas las etapas del proyecto consolidó un proceso colaborativo que fortaleció la identidad colectiva y promovió el desarrollo local. Este conjunto de estrategias, la articulación de patios como nodos de jerarquía y confort, el uso de materiales locales con participación comunitaria y el diseño bioclimático integral, ofrece valiosas pautas para el diseño de albergues multifuncionales y flexibles en contextos vulnerables.




Figura 8. Concepto de diseño

Nota. Niveles de privacidad y espacios de transición. Tomado de ASA Architecture (2021).


En segundo lugar, se analizó el Therapy Centre for Women and Children en Irak, un centro de terapia de trauma para mujeres y niños construido en 2016 por ZRS Architekten. Desde el punto de vista funcional, este proyecto destaca por sus estrategias de reconexión con la identidad cultural de sus ocupantes: incorpora un programa basado en actividades tradicionales de la zona, como la agricultura y la ganadería, y ofrece espacios especializados para su desarrollo (Radeljić y Roswag, 2020) (ver Figura 9). De este modo, el centro favorece la recuperación del vínculo comunitario con su historia y se configura como un espacio de encuentro social y cultural, donde prevalecen la confianza, la identidad y la sanación.

Dentro del aspecto bioclimático, para la construcción se emplean materiales locales como la madera y la arcilla en paredes y cubiertas, lo que refuerza la arquitectura vernácula y contribuye al confort térmico, gracias a una ventilación adecuada, protección solar y sistemas de recolección de aguas lluvias. El uso de un mismo sistema constructivo en todos los volúmenes facilita la expansión ordenada del proyecto, pues la comunidad ha recibido la capacitación necesaria para replicar y ampliar la infraestructura según sus necesidades. Finalmente, desde el aspecto social, el proyecto garantiza un sustento económico viable mediante las actividades productivas desarrolladas in situ y fomenta la autonomía y la reconstrucción emocional de las usuarias a través de la recuperación de prácticas culturales significativas.




Figura 9. Espacios especializados para actividades agrícolas

Nota. Tomado de ZRS Architekten Ingenieure (2018).



En tercer lugar, se analiza el albergue Shelter from the Storm, habilitado en Londres, Inglaterra, en 2020, por Holland Harvey Architects. A nivel funcional, el proyecto reutiliza un inmueble abandonado para crear un espacio polifuncional que ofrece servicios de cafetería o comedor comunitario durante el día y albergue durante la noche (Holland Harvey Architects, 2020). Para garantizar la privacidad, plantea dos accesos diferenciados: uno amplio y abierto, destinado a la cafetería, y otro más pequeño y discreto, destinado al albergue (ver Figura 10). Asimismo, reconoce distintos niveles de privacidad en el interior, al articular un espacio central comunitario que sirve de área de transición, lo que permite la conexión tanto de los huéspedes como de los visitantes del comedor.

En su dimensión bioclimática, utiliza materiales de uso cotidiano, duraderos y de fácil mantenimiento, como madera para pisos y mobiliario en dormitorios y zonas comunes, y cerámica en áreas húmedas, lo que prioriza la durabilidad y el bajo mantenimiento. Desde el aspecto social, el diseño conserva escalas domésticas en la altura de los cielorrasos, los vanos de puertas y ventanas, el mobiliario y la paleta cromática, con el fin de evitar una apariencia institucional y fomentar el sentido de pertenencia (The Architects’ Journal, 2020). De este modo, el espacio se percibe cercano y acogedor, lo que favorece la reconstrucción de vínculos personales y sociales.




Figura 10. Planta arquitectónica

Nota. Ingresos diferenciados y espacio comunitario de transición. Tomado de ArchDaily (2020).



Por último, se analizó el Showroom y Fábrica Ayase, un edificio multipropósito ampliado por Aki Hamada Architects en Japón, en 2017. Dentro del ámbito funcional, esta intervención, concebida como extensión de una fábrica local, alberga en sus distintos niveles espacios comunitarios versátiles, cuya flexibilidad se articula mediante paneles removibles tanto en el interior como en la fachada (Frearson, 2017). El proyecto se apoya en una estructura de madera que libera la planta de soportes interiores, lo que posibilita la reconfiguración de los ambientes según las necesidades emergentes (Mesa, 2020). Asimismo, adopta un sistema modular de 3,60 × 3,60 m para la definición de paneles, mobiliario y zonas húmedas, lo que contribuye a optimizar recursos y minimizar el desperdicio (Mesa, 2020). En relación con las características bioclimáticas, la fachada consta de dos capas superpuestas: una exterior, de paneles metálicos deslizantes, para regular la entrada de luz, y otra interior, de paneles de vidrio desmontables, que facilitan el control de la ventilación (Frearson, 2017). Esta envolvente ligera permite adaptar las condiciones ambientales interiores sin recurrir a sistemas mecánicos.

En conjunto, los referentes internacionales analizados evidencian cómo la integración equilibrada de criterios funcionales, bioclimáticos y sociales permite generar espacios adaptables, sostenibles y centrados en las personas. Estas experiencias demuestran que la participación comunitaria, el aprovechamiento de recursos locales y la flexibilidad programática son factores clave para fortalecer la habitabilidad y resiliencia de los albergues. Los aprendizajes obtenidos de estos casos aportan lineamientos concretos que pueden orientar el desarrollo de propuestas arquitectónicas pertinentes al contexto ecuatoriano.



3. Resultados


Con el fin de optimizar la capacidad de respuesta ante emergencias, se proponen estrategias orientadas al diseño y funcionamiento de albergues permanentes, multifuncionales y adaptables. Estas estrategias incluyen la planificación anticipada; la integración de actividades productivas locales; la aplicación de principios de arquitectura humanitaria; y la adopción de soluciones constructivas flexibles que garanticen habitabilidad, sostenibilidad y resiliencia.



Estrategia 1: Planificación y diseño integral de albergues permanentes (De lo efímero a lo planificado)


En primer lugar, resulta imprescindible diseñar, de forma anticipada, espacios destinados a la respuesta ante emergencias con vocación de albergue y de carácter multifuncional. Como señalan Buitrón et al. (2019), disponer de un recinto concebido desde el inicio como espacio habitable favorece una recuperación más efectiva de los damnificados.

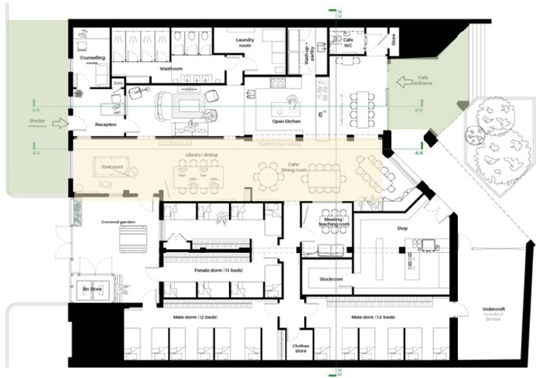
Desde el aspecto funcional, un proyecto planificado permite tomar decisiones certeras desde la fase inicial. Así, es fundamental definir la disposición de tres ámbitos principales: público, comunitario y privado, a los que hay que mantenerlos separados, pero interconectados mediante espacios de transición (ver Figura 11). Esta organización refuerza la percepción de seguridad de los usuarios. En el área pública, se incluirán actividades económicas y de servicios fijos, tales como oficinas de atención, puestos comerciales o unidades de salud. El ámbito comunitario albergará cocinas, comedores, lavanderías, aulas educativas, zonas verdes de recreación y espacios productivos como talleres, áreas culturales o salas multiuso, que podrán configurarse según las necesidades. Finalmente, el ámbito privado agrupará las unidades de alojamiento, cuya tipología variará para atender distintos tamaños y composiciones familiares (ver Figura 12).

En el aspecto bioclimático, la planificación previa habilita la selección de un sistema constructivo adecuado, que emplee materiales locales y garantice confort térmico, ventilación cruzada e iluminación natural. La orientación de los volúmenes y la integración de vegetación permiten controlar el asoleamiento y optimizar el aprovechamiento de la energía, lo que reduce el uso de sistemas mecánicos. Estos criterios aseguran eficiencia energética y sostenibilidad ambiental.

Desde la dimensión social, esta estrategia busca que el albergue trascienda su función temporal y se integre al tejido urbano, al fortalecer el sentido de pertenencia y la cohesión comunitaria. Su planificación anticipada posibilita que, en periodos de no emergencia, el espacio funcione como equipamiento social o productivo, al generar oportunidades de empleo y aprendizaje para la comunidad. Asimismo, la claridad programática y la conexión entre las zonas pública y comunitaria fomentan la interacción social y el apoyo mutuo entre los usuarios, que son aspectos esenciales para la resiliencia colectiva.

De este modo, el albergue no solo atenderá emergencias, sino que estará preparado para operar en condiciones normales, al integrarse al desarrollo comunitario. Así, garantiza habitabilidad, sostenibilidad y bienestar social.




Figura 11. Distribución de zonas para el albergue






Figura 12. Tipologías habitacionales modulares



Estrategia 2: Polifuncionalidad e integración de necesidades locales


Para evitar la subutilización de las infraestructuras habilitadas para emergencias, es fundamental incorporar un programa alternativo permanente que garantice su uso continuo en períodos de no emergencia. Desde el aspecto funcional, este programa debe incluir espacios habitacionales y un componente productivo adaptable, capaz de promover actividades sociales, culturales y económicas propias de la comunidad (ver Figura 13). De esta forma, la edificación se mantiene activa, favorece la autosuficiencia económica y refuerza su carácter resiliente y conectado con las necesidades locales.

El vínculo directo con la comunidad es clave. Por ello, el programa alternativo debe enfocarse en actividades productivas que incentiven la economía local y generen empleo tanto para los usuarios del albergue como para los habitantes de la zona. Un análisis previo del entorno permitirá identificar los sectores con mayor potencial, como lo son la agricultura, ganadería, carpintería o gastronomía, que se incorporan al diseño del albergue. Estas actividades no solo diversifican fuentes de ingreso, sino que también optimizan el funcionamiento del espacio, al mantenerlo operativo de manera constante.

Desde el aspecto social, la estrategia fortalece los lazos comunitarios, al propiciar espacios compartidos que estimulan la cooperación, la identidad y el intercambio de saberes. Los talleres productivos, las áreas culturales y los espacios de capacitación se conciben como puntos de encuentro que fomentan la cohesión y el sentido de pertenencia. De este modo, el albergue trasciende su función temporal y se convierte en un equipamiento activo que impulsa el desarrollo comunitario y contribuye a la recuperación integral de las poblaciones afectadas.




Figura 13. Integración de programas permanentes y adaptables



Estrategia 3: Implementación de principios de arquitectura humanitaria


Es importante adoptar un enfoque de diseño integral que vaya más allá de la resolución funcional del espacio, y que incorpore, de manera equilibrada, aspectos como la dimensión humana, la estimulación de la economía local, la contextualización cultural y el medio ambiente.

Desde la perspectiva social, el albergue debe satisfacer necesidades instrumentales que trasciendan lo básico, mediante la oferta de actividades relacionadas con ocio, participación, formación y construcción de identidad. Para ello, conviene destinar áreas específicas a servicios médicos y psicológicos, talleres de artesanías y otras expresiones artísticas locales, espacios de capacitación y bibliotecas, así como zonas de juego. Estas actividades fortalecen la cohesión comunitaria, la recuperación emocional y el sentido de pertenencia de los usuarios, que son elementos esenciales en la reconstrucción del tejido social tras un desastre.

Los factores expresivos y simbólicos cobran relevancia cuando la comunidad participa activamente en el diseño y la construcción del albergue. La organización de talleres de co-diseño, mesas de diálogo, encuestas o buzones de sugerencias permite incorporar experiencias y conocimientos locales. Asimismo, el uso de materiales producidos en la región fortalece la identidad cultural y el sentido de pertenencia (ver Figura 14).

En el ámbito funcional, el albergue debe vincularse con los equipamientos cercanos para garantizar el acceso a insumos y servicios esenciales. Esto puede lograrse mediante intervenciones urbanas a microescala, que incluyan el diseño de plazas, parques y la configuración de ejes viales principales y secundarios alrededor del albergue (ver Figura 15). Esta articulación con el entorno inmediato permite que el equipamiento se integre a la vida cotidiana de la comunidad y mantenga operatividad en contextos de emergencia y de normalidad. Finalmente, los criterios bioclimáticos deben evidenciarse en el control solar por medio de quiebrasoles, el aprovechamiento de la ventilación y la iluminación natural, y el uso estratégico de vegetación para crear un entorno confortable y sostenible.




Figura 14. Moodboard de materiales para el fortalecimiento del sentido de pertenencia






Figura 15. Conectividad urbana del albergue mediante intervenciones a microescala



Estrategia 4: Diseño flexible y adaptable


Para permitir la transformación eficiente de los espacios según las necesidades cambiantes, se recomienda emplear sistemas constructivos modulares, materiales ligeros y divisiones internas versátiles.

Desde el aspecto funcional, es fundamental diseñar una estructura mínima con grandes luces que libere la planta, lo que favorece su flexibilidad. Sobre esta base, debe aplicarse un sistema de modulación coherente en sus dimensiones, que facilite la instalación de paneles desmontables o correderos para reconfigurar el espacio interior (ver Figura 16). Asimismo, la ubicación estratégica de instalaciones sanitarias y de las circulaciones generales debe planificarse de forma que no interfiera con las áreas versátiles. Esta planificación garantiza la adaptabilidad programática y la eficiencia espacial, lo que permite que el albergue se transforme según la etapa o el uso requerido. En el aspecto bioclimático, la flexibilidad del diseño también debe considerar el confort térmico y la eficiencia energética. La modulación estructural puede aprovechar la orientación solar y la ventilación cruzada, mediante cerramientos móviles o cubiertas ajustables que regulen la entrada de luz y aire natural. Estas soluciones, además de optimizar las condiciones ambientales, reducen el consumo energético y prolongan la vida útil de la edificación.

Estas estrategias optimizan el uso del espacio, extienden la vida útil de los equipamientos y promueven la sostenibilidad al reducir costos de remodelación. Contar con espacios flexibles facilita, además, la creación de un albergue verdaderamente polifuncional, capaz de adaptarse sin pérdida de eficiencia ni confort.




Figura 16. Adaptabilidad espacial: de estructura modular abierta a espacios habitacionales flexibles





4. Discusión


Los resultados de este estudio destacan la importancia de estrategias de planificación anticipada que garanticen condiciones de habitabilidad y recuperación óptima para los damnificados por un desastre natural. Esto implica un programa alternativo y flexible que, en un inicio, potencie las actividades productivas sociales y culturales, y que, a su vez, tras el desastre, se adapte para satisfacer las necesidades básicas e instrumentales de las víctimas. De esta manera, los resultados evidencian la aplicación de los criterios funcionales, bioclimáticos y sociales definidos en la metodología, los cuales se reflejan de forma transversal en las estrategias de planificación, integración comunitaria, aplicación de principios humanitarios y diseño flexible. Esta relación demuestra la coherencia entre el marco teórico, el análisis de casos y las propuestas de diseño formuladas.

El diseño de diversas tipologías para habitaciones, espacios comunitarios, áreas educativas y recreativas se complementa con la elección de un sistema constructivo adecuado, con materiales ligeros, que reflejan también la identidad cultural de los habitantes y que permiten su adaptabilidad, dependiendo de la situación que se presente.

A partir de este principio, las estrategias se pusieron a prueba mediante la propuesta teórica de un equipamiento flexible y polifuncional para el cantón Cuenca, centrado en las parroquias de Bellavista y Sinincay. La aplicación demostró que la planificación anticipada, junto con un diseño adaptable, puede mitigar las consecuencias de los desastres y favorecer la recuperación de los damnificados, al incorporar principios de arquitectura humanitaria y flexible (Bubher, 1979). El proyecto prioriza un sistema constructivo modular que utiliza materiales locales, ligeros y resistentes, grandes luces y una disposición estratégica de instalaciones y recorridos internos.

Estos criterios coinciden con Pinto (2019), que destaca la optimización del espacio, la extensión de la vida útil y la reducción de costos. Por ello, se definió un programa base de centro artesanal como función alternativa cuando el albergue no esté en uso. Esta decisión se sustentó en el análisis de las actividades productivas locales y los espacios requeridos en ambas parroquias, de modo que el equipamiento incluye talleres de carpintería, cerámica y tejido. Asimismo, se incorporaron áreas exteriores amplias para actividades agrícolas, lo cual refuerza el sentido de identidad de los usuarios, al conectar el proyecto con prácticas comunitarias. El centro artesanal promueve la autosuficiencia y dinamiza la economía local, mediante la generación de empleo y la maximización de recursos, tal como proponen Dy y Naces (2016).

El proyecto también refuerza la resiliencia comunitaria, concepto respaldado por Torres et al. (2021), al erigir un modelo replicable y escalable capaz de enfrentar situaciones adversas. Tras el desastre, el equipamiento se ajusta casi en su totalidad para funcionar como albergue, conforme a las necesidades del momento. Si se sigue a Nappi y Souza (2017), incorpora diversas tipologías de habitaciones y espacios comunitarios como cocina, comedor, lavandería, áreas de ocio, aulas para niños y jóvenes, y extensas zonas verdes para recreación. Gracias a la planificación, la orientación de los bloques garantiza confort térmico y luminoso, apoyada en un sistema constructivo adecuado.

Por último, y tal como plantean Buitrón et al. (2017), el proyecto contempla zonas de convivencia que satisfacen las necesidades básicas. No obstante, su alcance supera lo esencial: diseñar espacios cuyas actividades productivas o recreativas respondan también a necesidades instrumentales como ocio, participación, afecto e identidad. Al centrarse en Bellavista y Sinincay, se valoran factores expresivos y simbólicos de cada comunidad mediante la selección de materiales y la configuración versátil de los espacios, adaptados a sus costumbres y dinámicas cotidianas.



Potencial de aplicación en diferentes entornos


En la actualidad, varias parroquias rurales de Cuenca presentan niveles de exposición medios o altos a desastres socio-naturales. Es decir, entre el 21 % y el 50 % de su población se considera vulnerable (GAD Cuenca, 2022). Por ello, las estrategias propuestas resultan fácilmente replicables y escalables en dichas parroquias y en otras regiones con problemáticas similares. Se sugiere diseñar equipamientos que aprovechen las particularidades productivas, culturales y sociales de cada territorio, de modo que respondan a sus necesidades específicas y generen oportunidades de empleo, programas de desarrollo de habilidades, cohesión social y dinamización del turismo. Al mismo tiempo, estos espacios deben poder transformarse en centros de asistencia y recuperación para víctimas de desastres, al incorporar mecanismos de resiliencia comunitaria adaptados a cada contexto.

Para aplicar con éxito estas estrategias en nuevos entornos, resulta esencial ajustarlas a las condiciones locales. En primer lugar, como señalan Aversa et al. (2020), conviene realizar un diagnóstico detallado de la vulnerabilidad y los riesgos de la población ante el desastre, pues la magnitud de los daños y el plazo de recuperación dependen de la susceptibilidad de la comunidad. En segundo lugar, el diseño debe estrechar el vínculo con la historia y las costumbres locales para reforzar el sentido de pertenencia y promover la autosuficiencia económica. En tercer lugar, tal como indican Dy y Naces (2016), las soluciones han de ser viables desde el punto de vista económico, al aprovechar recursos, tecnologías y capacidades autóctonas para fomentar el empleo y empoderar a la comunidad. Por último, la participación activa de los habitantes en el proceso de diseño y construcción asegura que el proyecto atienda sus necesidades reales y favorece la apropiación del espacio.



5. Conclusiones


Los resultados de la investigación confirman que la planificación anticipada y el diseño flexible facilitan la creación de espacios que respondan a las necesidades básicas e instrumentales de la población afectada por desastres, mientras que refuerzan su identidad y economía local. El modelo incorpora, fundamentalmente, criterios funcionales, bioclimáticos y sociales, que se alinean con los principios de la arquitectura humanitaria mientras se ajustan a los estándares del Manual Esfera, al proporcionar espacios dignos, seguros y adaptables. El sistema modular ligero permite su dualidad, productivo en su uso habitual y como refugio en contexto de emergencia, lo que maximiza el aprovechamiento del espacio y los recursos.

No obstante, la implementación de estos proyectos exige no solo una adaptación metodológica, sino también la superación de barreras institucionales y estructurales. La ausencia de políticas públicas claras y estructuradas para la gestión de desastres representa un desafío principal. En Cuenca, las respuestas gubernamentales se han caracterizado por la improvisación, al recurrir a espacios sin planificación previa ni adecuaciones, lo cual compromete la calidad de vida de los damnificados, dificulta su recuperación y afecta el uso normal de dichos espacios. Además, la falta de financiación pública impide el desarrollo de protocolos e infraestructuras específicas para emergencias. Por ello, resulta imprescindible garantizar la continuidad de las políticas públicas y asegurar fondos sostenidos que permitan transitar de soluciones improvisadas a planificadas.

A partir de los hallazgos de este estudio, surgen varias líneas de investigación futuras. En primer lugar, convendría evaluar a largo plazo el impacto de estos equipamientos en la resiliencia de las comunidades afectadas, especialmente en contextos con recurrencia de desastres. Analizar cómo esta infraestructura contribuye a la recuperación emocional, social y funcional permitiría validar su efectividad más allá de su uso inmediato. En segundo lugar, resulta relevante estudiar la adaptación y replicación del modelo en diferentes escalas y contextos geográficos, al considerar variables como clima, cultura local, densidad poblacional y acceso a recursos. Esta perspectiva comparativa enriquecería el enfoque estratégico y aumentaría su potencial de implementación en diversos escenarios.


Declaración de conflicto de intereses: Los autores declaran no tener conflictos de interés.

Declaración de contribución de los autores: A continuación, se menciona la contribución de los autores, en correspondencia con su participación, mediante la Taxonomía Crédit:



6. Referencias


Active Social Architecture. (2021). Rugerero Health Center in Rubavu District. ASA. https://activesocialarchitecture.com/rugerero-hc

ArchDaily. (2020). Shelter From The Storm / Holland Harvey Architects [Diagrama]. https://www.archdaily.com/950057/shelter-from-the-storm-holland-harvey-architects

ASA Studio. (2021). Rugerero Health Center / ASA Studio [Diagrama]. ActiveSocialArchitecture. https://www.activesocialarchitecture.com/rugerero-hc

Aversa, M., Rotger, D., y Florencia Senise. (2020). Vivir en las márgenes del riesgo. Inundación y resiliencia en La Plata. Bitácora Urbano Territorial, 30(lll), 219 -232. https://doi.org/10.15446/bitacora.v30n3.86792

Buitrón, R., Hidrovo, A., y Redín, G. (2017). Necesidades y Motivaciones de Familias que viven en Albergues y Refugios. Dirección de Investigación y Análisis, Ministerio de Inclusión Económica y Social. https://info.inclusion.gob.ec/phocadownloadpap/estudios/aseguramiento_no_contributivo/2017/ necesidades_y_motivaciones_de_familias_que_viven_en_albergues_y_refugios.pdf

Camargo Mora, M. G., Guerrero Camargo, O. A., y Guerrero, O. A. (2020). Inserción del riesgo natural en la planificación territorial. Cuadernos de Vivienda y Urbanismo, 13, 1-15. https://doi.org/10.11144/Javeriana.cvu13.irnp

Campos Vargas, M., Toscana Aparicio, A., y Campos Alanís, J. (2015). Riesgos Fsocionaturales: vulnerabilidad socioeconómica, justicia ambiental y justicia espacial. Cuadernos de Geografía: Revista Colombiana de Geografía, 24(2), 53-69. https://www.redalyc.org/articulo.oa?id=281839793004

Charlesworth, E. (2014). Humanitarian Architecture: 15 stories of architects working after disaster. Internet Archive. https://archive.org/details/humanitarianarch0000char/page/n5/mode/2up

Dy, G., y Naces, M. L. P (2016). Rebuilding with a heart: Architecture roles in post-disaster psychosocial interventions. Journal of Architecture and Urbanism, 40(1), 2-7. https://doi.org/10.3846/20297955.2016.1159533

EFE. (2016). Ecuador luego del terremoto, la esperanza en albergues [Fotografía]. El Estímulo. https://elestimulo.com/climax/internacional/2016-04-28/ecuador-luego-del-terremoto-la-esperanza-en-albergues/

El Mercurio. (3 de mayo de 2022). La gran cantidad de lluvia y las actividades humanas ponen en riesgo montañas, viviendas y la propia vida. El Mercurio. https://elmercurio.com.ec/principal/2022/05/03/la-gran-cantidad-de-lluvia-y-las-actividades-humanas-ponen-en-riego-montanas-viviendas-y-la-propia-vida/

El Mercurio. (17 de mayo de 2021). La crecida más grande del río Tarqui en dos décadas deja a decenas de familias damnificadas. El Mercurio. https://elmercurio.com.ec/cuenca/2021/05/17/la-crecida-mas-grande-del-rio-tarqui-en-dos-decadas-deja-a-decenas-de-familias-damnificadas/

Fernández-Llebrez, J. (2013). La dimensión humana de la arquitectura. Aprendiendo del Team 10. Arquitectura y Urbanismo, 34(1), 64-72.http://scielo.sld.cu/scielo.php?script=sci_arttext&pid=S1815-58982013000100006&lng=es&tlng=es

Franco Medina, R. (2009). Estructuras adaptables. Revista de Arquitectura (Bogotá), 11, 108-119. http://www.redalyc.org/articulo.oa?id=125117408011

Frearson, A. (22 de mayo de 2017). Removable walls offer endless configurations for community space by Aki Hamada. Dezeen. https://www.dezeen.com/2017/05/22/substrate-factory-ayase-community-space-japan-kanagawa-aki-hamada-architects/

Gelabert Abreu D., y González Couret, D. (2013a). Progresividad y flexibilidad en la vivienda. Enfoques teóricos. Arquitectura y Urbanismo, 34(1), 17-31. http://scielo.sld.cu/scielo.php?script=sci_arttext&pid=S1815-58982013000100003

Gelabert Abreu, D., y González Couret, D. (2013b). Vivienda progresiva y flexible. Aprendiendo del repertorio. Arquitectura y Urbanismo, 34(2), 48-63. http://scielo.sld.cu/scielo.php?script=sci_arttext&pid=S1815-58982013000200005&lng=es&tlng=es

Gobierno Autónomo Descentralizado Municipal del Cantón Cuenca [GAD Cuenca]. (2022). Plan de Desarrollo y Ordenamiento Territorial del Cantón Cuenca – Actualización 2022: Anexo 2.1 Diagnóstico. https://www.cuenca.gob.ec/sites/default/files/planificacion/dic2022/2_1_Diagnostico.pdf

Gómez Salazar, A., y Cuvi, N. (2016). Asentamientos informales y medio ambiente en Quito. Áreas. Revista Internacional de Ciencias Sociales, (35), 101–119. https://revistas.um.es/areas/article/view/279181

Holland Harvey Architects. (2020). Shelter From The Storm. Holland Harvey Architects. https://www.hollandharvey.com/work/shelter-from-the-storm

Jaque Castillo, E. d. C., Lara San Martín, A., y Merino González, C. (2017). Fortaleciendo el uso de los Instrumentos de Planificación Urbana para la Gestión de Riesgos. Ciudad de Coronel, Región del Biobío. Revista INVI, 32(90), 107-124. https://dx.doi.org/10.4067/S0718-83582017000200107

Jiménez Pérez, J. (2017). Refugio Preventivo para salvaguardar a las personas de Puerto Saavedra las primeras 72 hrs del Impacto. Universidad de Chile. Facultad de Arquitectura y Urbanismo. https://repositorio.uchile.cl/handle/2250/147322

Ley Orgánica de Ordenamiento Territorial, Uso y Gestión del Suelo. (2016). Superintendencia de Ordenamiento Territorial, Uso y Gestión del Suelo. https://www.gobiernoelectronico.gob.ec/wp-content/uploads/2020/08/Ley-Organica-de-Ordenamiento-Territorial-Uso-y-Gestion-de-Suelo1.pdf

Medina Q. A. F., y Castro O. A. F. (2014). Modelo de hábitat a partir de la arquitectura flexible. Universidad Piloto de Colombia, Facultad de Arquitectura y Artes, Programa de Arquitectura; https://repository.unipiloto.edu.co/bitstream/handle/20.500.12277/1663/Trabajo%20de%20grado.pdf?sequence=1&isAllowed=y

Mesa, V. (2020). La adaptación del espacio urbano, intermedio y colaborativo. Universidad de Buenos Aires, Facultad de Arquitectura, Diseño y Urbanismo. https://repositorio.ub.edu.ar/handle/123456789/9319

Montejano, M., y Moreno, M. (2020). La Habitabilidad Efímera: El espacio público como refugio de desastres en Ciudad de México. Arquitecturas del sur, 38(57), 90-107. https://dx.doi.org/10.22320/07196466.2020.38.057.05

Nappi, M. M., y Souza, J. C. (2017). Temporary shelters: An architectural look at userenvironment relationships. Arquitetura Revista, 13(2), 112–120. https://doi.org/10.4013/arq.2017.132.05

Pacurucu, N., Acosta, E., y Morocho, V. (2018). Mapeo de Zonas Vulnerables a Deslizamientos usando PP GIS y técnicas de Teledetección. Revista Geoespacial, 15(2), 53-66. https://doi.org/10.24133/geoespacial.v15i2.1353

Peñaloza Caicedo, A., y Curvelo Magdaniel, F. (2011). La experiencia del espacio académico flexible BK-City. Universidad Técnica de Delft, Laboratorio espacial de una facultad de arquitectura. Dearq, 1(9), 114-131. https://doi.org/10.18389/dearq9.2011.11

Pinto Campos, B. C. (2019). Arquitectura y diseño flexible: una revisión para una construcción más sostenible (Tesis doctoral). Universitat Politècnica de Catalunya, Departament de Representació Arquitectònica. https://hdl.handle.net/2117/176433 (DOI: 10.5821/dissertation-2117-176433)

Radeljić, L., y Roswag-Klinge, E. (2020). Healing Garden Chamchamal – Transforming valuable heritage into modern earthen architecture [Presentación en LEHM 2020, 8th International Conference on Building with Earth]. Dachverband Lehm. https://www.dachverband-lehm.de/lehm2020_online/pdf/lehm2020_b_radeljic-roswag-klinge_en.pdf

Real Academia Española [RAE]. (s. f.). albergue. En Diccionario de la lengua española (23.ª ed.). https://dle.rae.es/albergue

Red Interinstitucional para la Educación en Situaciones de Emergencia [INEE y EIRD]. (2007). La escuela como albergue, una realidad que perjudica a la niñez (Capítulo 1). https://www.eird.org/cd/toolkit08/material/Inicio/escuela_albergue/capitulo_1.pdf

Reyes Rivera, O., Torres Vega, P., y Torres Lima, P. (2022). Políticas de gestión de riesgos de desastres e inclusión-exclusión de asentamientos informales. Una evaluación para la Ciudad de México. Gestión Y Análisis De Políticas Públicas, (30), 163–179. https://doi.org/10.24965/gapp.10963

Rojas, L, y Sandoval, J. (2020). Habitando “no lugares”: subjetividad y capacidades familiares ante un desastre socionatural en Chile. Íconos – Revista De Ciencias Sociales, (66), 59-80. https://doi.org/10.17141/iconos.66.2020.3883

Secretaría Nacional de Gestión de Riesgos del Ecuador. (2022). Reseña histórica de graves desastres naturales en el Ecuador. Secretaría Nacional de Gestión de Riesgos del Ecuador. https://es.scribd.com/document/384359606/Resena-Historica-de-Graves-Desastres-Naturales-en-El-Ecuador

The Architects Journal. (23 de octubre de 2020). Shelter from the Storm by Holland Harvey Architects. The Architects Journal. https://www.architectsjournal.co.uk/buildings/shelter-from-the-storm-by-holland-harvey-architects

Torres Lima, P., Torres Vega, P., y Castro Garza, G. (2021). Asentamientos informales y resiliencia comunitaria. Itinerarios para su evaluación ante riesgos de desastres. Ciudades, Estados y Política, 8(1), 102–123. https://dialnet.unirioja.es/servlet/articulo?codigo=8961405

ZRS Architekten Ingenieure. (2018). Jiyan Healing Garden / ZRS Architekten Ingenieure [Diagrama]. ZRS Architekten Ingenieure. https://www.zrs.berlin/en/project/jiyan-healing-garden-2/